
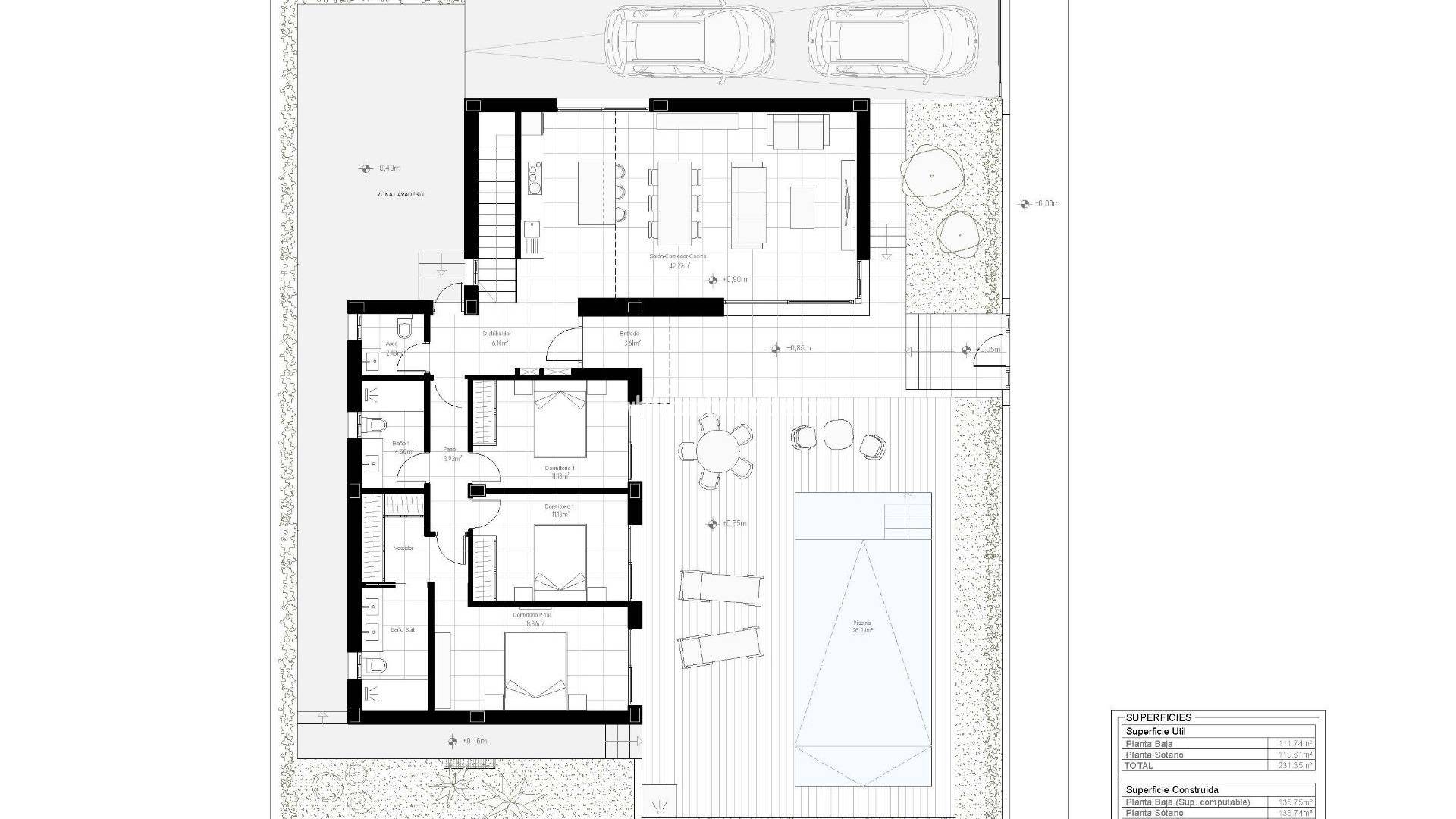
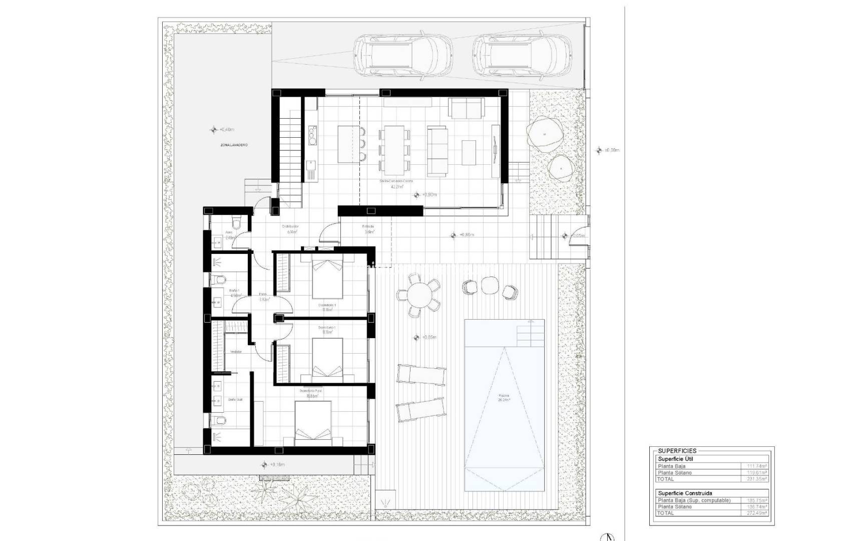
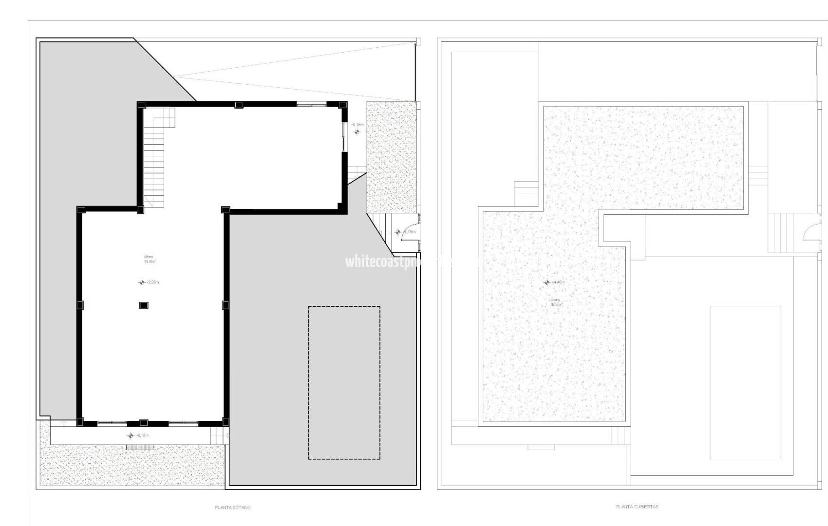
Новые виллы в Santa Rosalia Lake and Life Resort – эксклюзивное жилье в Мурсии Превосходное расположение рядом с Мар Менор Эти недавно построенные виллы расположены в престижном Santa Rosalia Lake and Life Resort, частном закрытом жилом комплексе в регионе Мурсия. Окруженный первоклассными полями для гольфа и всего в 4 км от золотых пляжей Мар Менор, комплекс предлагает идеальное сочетание уединения, природы и роскошной жизни. Оживленный прибрежный городок Лос-Алькасарес находится всего в 5 минутах езды, а исторический город Картахена – в 15 минутах. Международный аэропорт Мурсии расположен примерно в 22 км, что обеспечивает легкий доступ из крупных европейских городов. Современные виллы, спроектированные для комфорта Каждая вилла имеет современный открытый план с 3 спальнями, 2 ванными комнатами и гостевым туалетом. Светлая и просторная гостиная объединяет в себе полностью оборудованную кухню с обеденной и гостиной зоной, выходящую в ландшафтный частный сад с бассейном. Также имеется частная парковка вне дороги. На нижнем уровне находится отделаный подвал площадью 136 м² с гладкими стенами, подключением к водопроводу и электричеству, который может служить дополнительными спальнями, офисом, тренажерным залом, кинозалом или детской игровой зоной. Высококачественная отделка и экологичные характеристики Внимание к деталям прослеживается во всех аспектах этих домов. Особое внимание заслуживают усиленная входная дверь, автоматические жалюзи в спальнях, встроенные шкафы и кухня, оборудованная бытовой техникой. Экологичное проживание обеспечивают шесть установленных фотоэлектрических солнечных панелей. Сад полностью отделана искусственной травой, пальмами, автоматической системой полива и декоративными кустарниками. Эффективная система кондиционирования воздуха обеспечивает комфорт круглый год. Озеро Санта-Росалия и Life Resort – оазис в карибском стиле Курорт может похвастаться 126 000 м² красиво благоустроенных зеленых зон с пешеходными и велосипедными дорожками, спортивными сооружениями, кортами для паддл-тенниса и тенниса, мини-гольфом, парками для собак, зонами отдыха и клубом. Центральным элементом является впечатляющая кристально чистая лагуна площадью 17 000 м² с белыми песчаными пляжами и пальмами, создающая настоящую карибскую атмосферу. На двух островах расположены зоны отдыха, включая бар и очаровательные пляжные клубы, разбросанные по всему озеру. Идеальное место для отдыха, спорта и инвестиций Этот уникальный комплекс идеально подходит для тех, кто ищет основное место жительства, дом для отдыха или высокодоходную инвестицию. Его стратегическое расположение обеспечивает легкий доступ к культурным, гастрономическим и развлекательным достопримечательностям, что делает его исключительным выбором как для семей, так и для любителей гольфа. Свяжитесь с нами сегодня, чтобы приобрести свою новую виллу в Santa Rosalia Lake and Life Resort и начать наслаждаться средиземноморским образом жизни.
Это ориентировочная информация, которая может подвеграться изменениям и не является частью будущего контракта. Расходы на покупку не включены в цену объекта.