
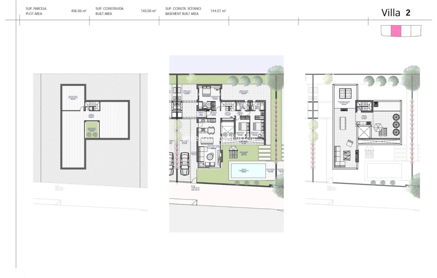
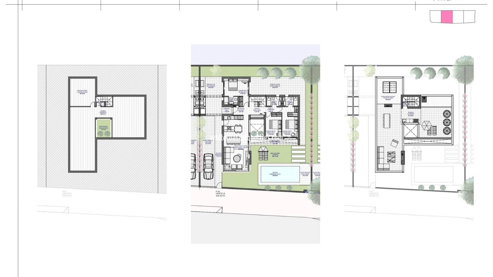
НОВЫЕ ВИЛЛЫ В ЧАСТНОМ ЗАКРЫТОМ КУРОРТЕ В ПРОВИНЦИИ МУРСИЯ Новые виллы в частном закрытом курорте в провинции Мурсия, в окружении отличных полей для гольфа и всего в 10 минутах от песчаных пляжей моря Мар Менор. Этот эксклюзивный проект состоит из 4 независимых вилл с 3 спальнями и 3 ванными комнатами на одном этаже, с частным бассейном 3 x 7, подвалом открытой планировки с освещением и вентиляцией через английский внутренний дворик и большой солярий на участке площадью 400 м2. Расположены в частном закрытом курорте, с главным входом и круглосуточной охраной. Курорт спроектирован вокруг впечатляющей зеленой зоны площадью 126.000 м2. Он включает в себя пешеходные и велосипедные дорожки, спортивные сооружения, площадки для игры в паддл и теннис, поле для мини-гольфа, сады, парки для собак, зоны отдыха, клубный дом..... Также в центральной части находится жемчужина курорта - кристально чистое искусственное озеро площадью почти 17 000 м2, окруженное белыми песчаными пляжами и пальмами, что привносит частичку Карибского моря в регион Мурсия. В озере есть 2 острова, на одном из которых есть собственный бар, а также "пляжные чирингитос", разбросанные по всему озеру. Курорт стратегически расположен менее чем в 4 км от пляжа и города Лос-Алькасарес, где можно заниматься различными водными видами спорта, в окружении нескольких полей для гольфа и города Картахена менее чем в 15 минутах езды на машине и в 22 км от аэропорта Мурсии, поэтому в пределах досягаемости находится широкий спектр культурных, гастрономических и спортивных предложений.
Это ориентировочная информация, которая может подвеграться изменениям и не является частью будущего контракта. Расходы на покупку не включены в цену объекта.