
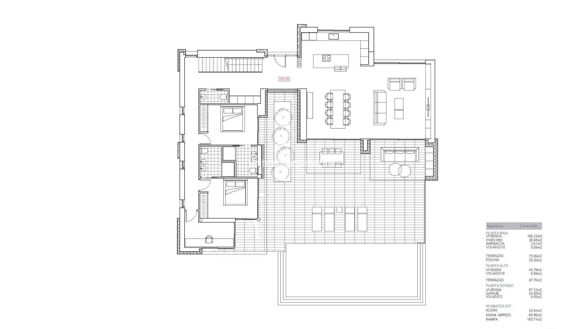
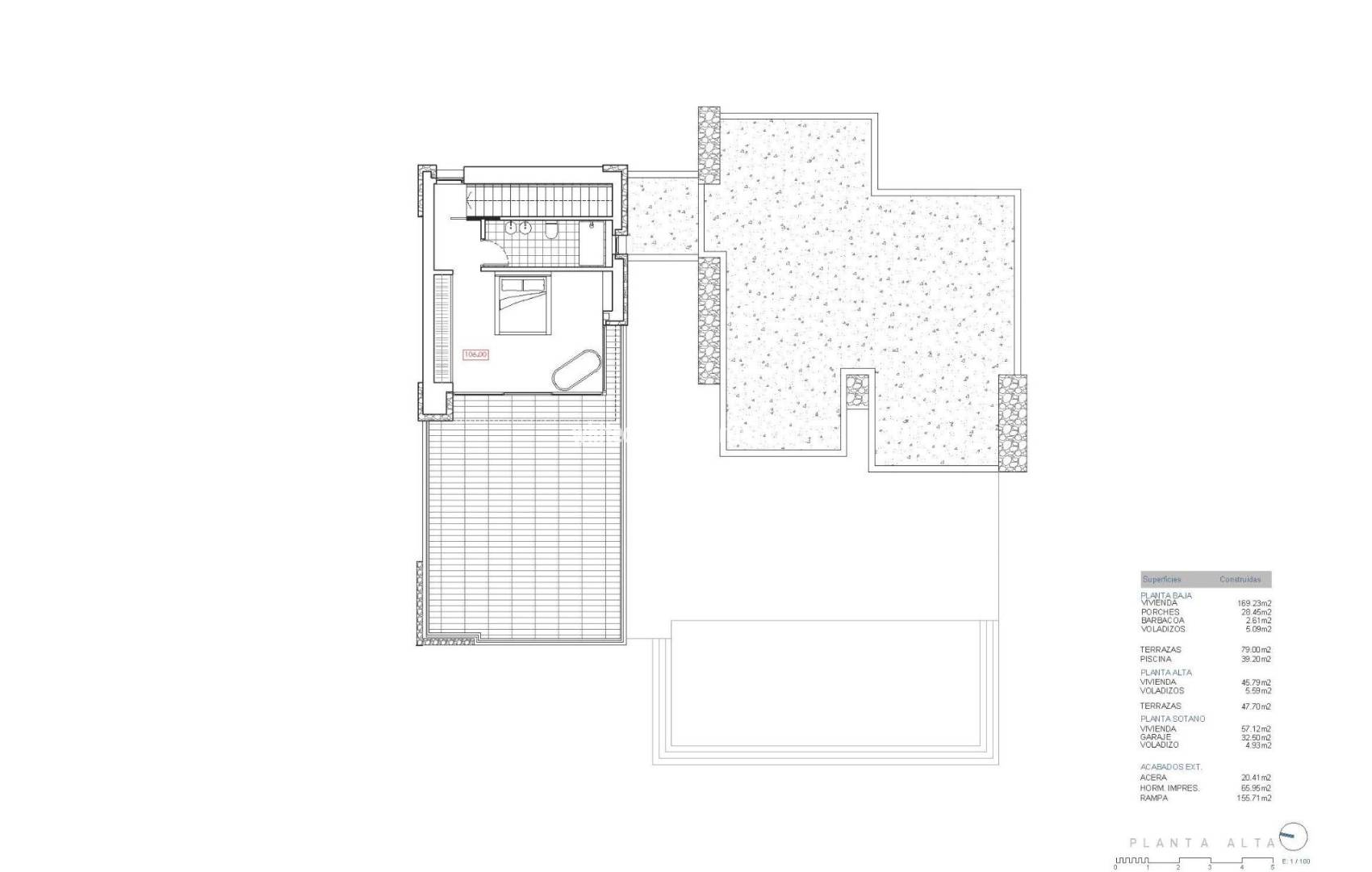
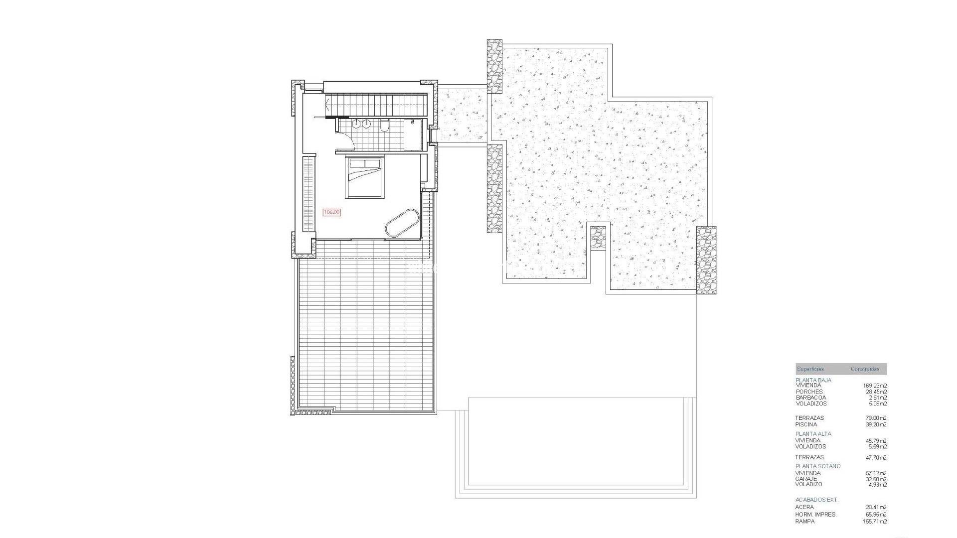
Роскошная новая вилла с видом на море в Сан-Хайме, Бенисса Эксклюзивная резиденция в престижном районе Коста-Бланка Эта исключительная новая вилла, расположенная в престижном районе Сан-Хайме в Бениссе, предлагает вид на море, уединение и современный средиземноморский дизайн всего в 2 км от пляжа. Расположенная в тихом тупике, недвижимость гарантирует спокойствие, оставаясь при этом недалеко от основных услуг и развлекательных заведений на северном побережье Коста-Бланка. Сан-Хайме — один из самых востребованных жилых районов на побережье Коста-Бена, известный своими элегантными виллами, зелеными окрестностями и близостью к полям для гольфа, пляжам и очаровательным прибрежным городкам. Вилла расположена на просторном участке площадью 1021 м2 с общей застроенной площадью 351 м2 и в настоящее время находится в стадии строительства, при этом конструкция уже завершена. Тщательно продуманный дизайн на трех уровнях Эта современная вилла расположена на трех тщательно спланированных этажах, сочетающих функциональность с изысканной эстетикой. На первом этаже расположены частный гараж, прачечная и техническое помещение, что позволяет незаметно интегрировать практичные пространства в общий дизайн. На первом этаже открытого плана гостиная и столовая плавно переходят в полностью оборудованную кухню, создавая светлую и уютную атмосферу, идеальную для повседневной жизни и развлечений. На этом уровне также расположены две просторные спальни, каждая с собственной ванной комнатой. Открытая терраса и частный бассейн расширяют жилое пространство, предлагая идеальные условия для отдыха, обедов и наслаждения средиземноморским климатом с прекрасным видом на море. Верхний этаж отдан под главную спальню с ванной комнатой и прямым выходом на большую открытую террасу, откуда можно наслаждаться панорамным видом и спокойными закатами. Премиум-оснащение и современный комфорт Вилла сдается с высококачественной отделкой и современными системами, обеспечивающими максимальный комфорт и эффективность, в том числе: Полностью оборудованная кухня с бытовой техникой Дизайнерские ванные комнаты с мебелью Электрические жалюзи Видеодомофон и сигнализация Аэротермальная система для горячей воды и подогрева полов Полностью установленная система кондиционирования с воздуховодами Выгодное расположение рядом с гольф-клубом, пляжами и инфраструктурой Недвижимость расположена рядом с гольф-клубом Club de Golf Ifach и недалеко от популярного супермаркета Pepe La Sal. Побережье и бухты Бенисса-Коста находятся всего в 2 км. Расстояния до основных достопримечательностей Пляж 2 км Морайра 5 км Кальпе 8 км Club de Golf Ifach 0,5 км Аэропорт Аликанте 80 км Аэропорт Валенсии 110 км Обеспечьте себе виллу своей мечты в Бенисса Коста Эта выдающаяся вилла сочетает в себе современную архитектуру, вид на море и привилегированное расположение в Сан-Хайме. Свяжитесь с нами сегодня, чтобы получить дополнительную информацию или договориться о частном просмотре этой эксклюзивной новой недвижимости в Бениссе.
Это ориентировочная информация, которая может подвеграться изменениям и не является частью будущего контракта. Расходы на покупку не включены в цену объекта.