
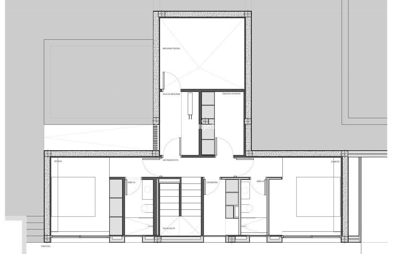
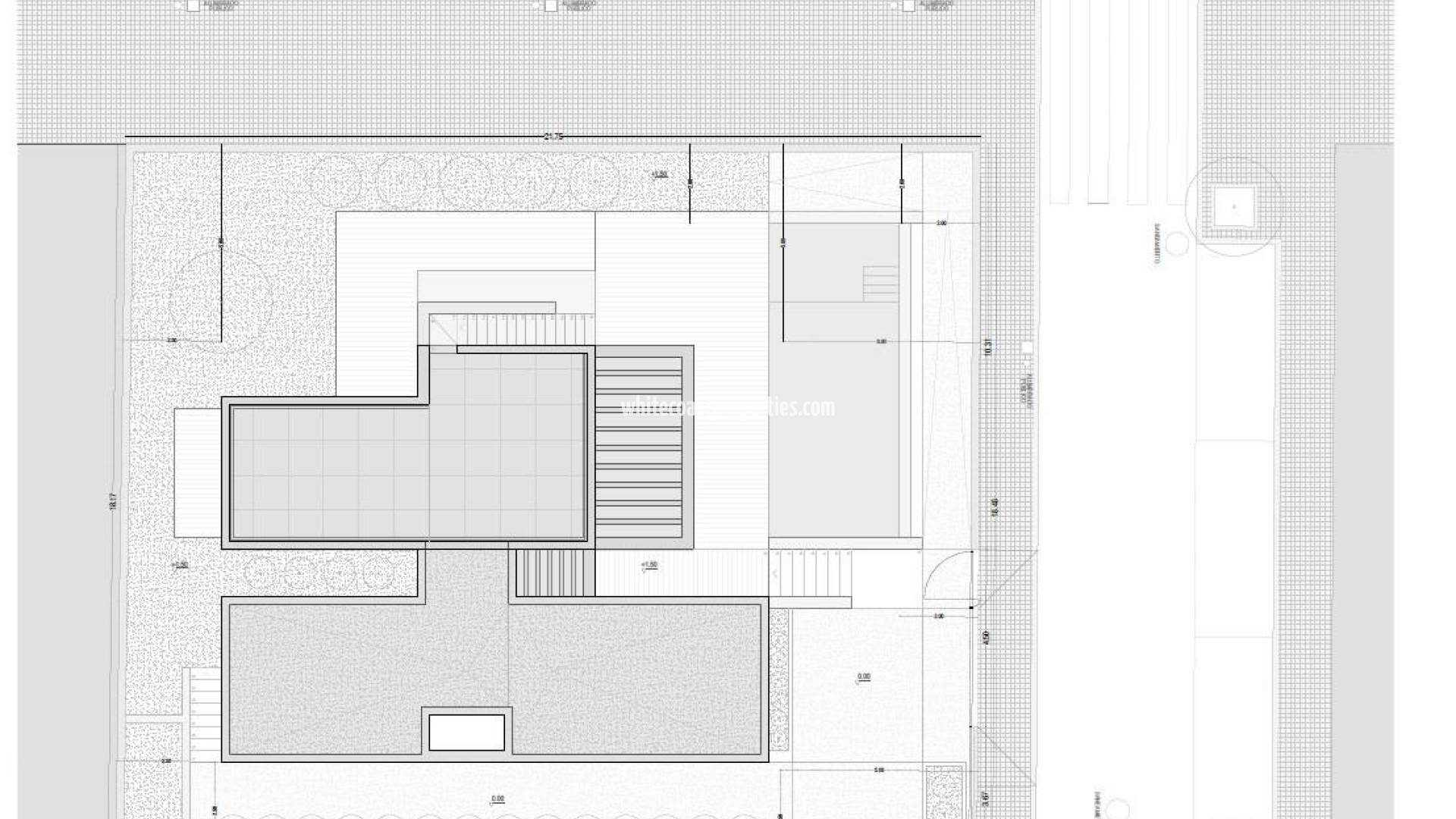
Готовая к заселению новая вилла с видом на море в Ла Альберка Полоп Роскошная современная вилла в окружении природы Эта готовая к заселению современная вилла расположена в Ла Альберка, тихом жилом районе Полопа, в окружении лесов и гор. Расположенная на возвышенности, вилла предлагает панорамный вид на Средиземное море, горы и исторический центр города Полоп. Вилла обеспечивает уединение, спокойствие и отличное транспортное сообщение с побережьем и близлежащими городами. Полоп — очаровательная деревня в регионе Марина Байша на побережье Коста Бланка, известная своим традиционным характером и природным окружением. Недвижимость находится недалеко от всех удобств в Ла Нусия, включая магазины, рестораны, спортивные центры и школы, а пляжи и оживленные прибрежные города находятся всего в нескольких минутах езды. Просторная планировка на первом этаже, в подвале и на солнечной террасе Вилла состоит из главного этажа, подвала и солярия на крыше, предлагая просторную жилую площадь и гибкость. На главном этаже уютный вестибюль со встроенным шкафом ведет к двум спальням с ванными комнатами, включая главную спальню с подъемными окнами, выходящими на балкон Джульетты и террасу. Открытая гостиная и столовая плавно переходят в крытую террасу с перголой и частный бассейн с морской водой. На цокольном этаже расположены две дополнительные спальни с ванными комнатами и большими окнами, универсальная игровая комната или кинозал с подключением к водопроводу и электричеству для бара, полностью оборудованная прачечная с техникой Haier и два технических помещения для хранения. Солярий на крыше предлагает просторное открытое пространство с панорамным видом на море и подготовлен для будущей установки солнечных панелей. Открытая кухня, несколько шкафов для хранения и ландшафтный сад в средиземноморском стиле с автоматической системой полива дополняют экстерьер. Высококлассные характеристики и энергоэффективность Эта вилла выделяется своей высококачественной отделкой и современным оборудованием, в том числе: Центральный кухонный остров со встроенной техникой BOSCH Столешницы из натурального камня внутри и снаружи Предварительная установка подогрева полов Аэротермальная система кондиционирования Mitsubishi Класс энергоэффективности A Предварительная установка системы «умный дом» Бассейн с морской водой и опциональным подогревом Частная парковка на два автомобиля Большие окна с солнцезащитным стеклом максимально увеличивают естественное освещение, обеспечивая комфорт и безопасность. Отличное расположение и расстояния Центр Полопа 2 км Ла Нусия 4 км Бенидорм 12 км Альтеа 10 км Пляжи 10 км Villaitana Golf 14 км Аэропорт Аликанте 65 км Обеспечьте себе дом своей мечты в Полопе Эта исключительная готовая к заселению вилла сочетает в себе уединение, дизайн и панорамные виды в одном из самых привлекательных внутренних районов Коста-Бланки. Свяжитесь с нами сегодня, чтобы договориться о частном просмотре и сделать эту роскошную виллу в Ла Альберка Полоп вашим новым домом.
Это ориентировочная информация, которая может подвеграться изменениям и не является частью будущего контракта. Расходы на покупку не включены в цену объекта.