
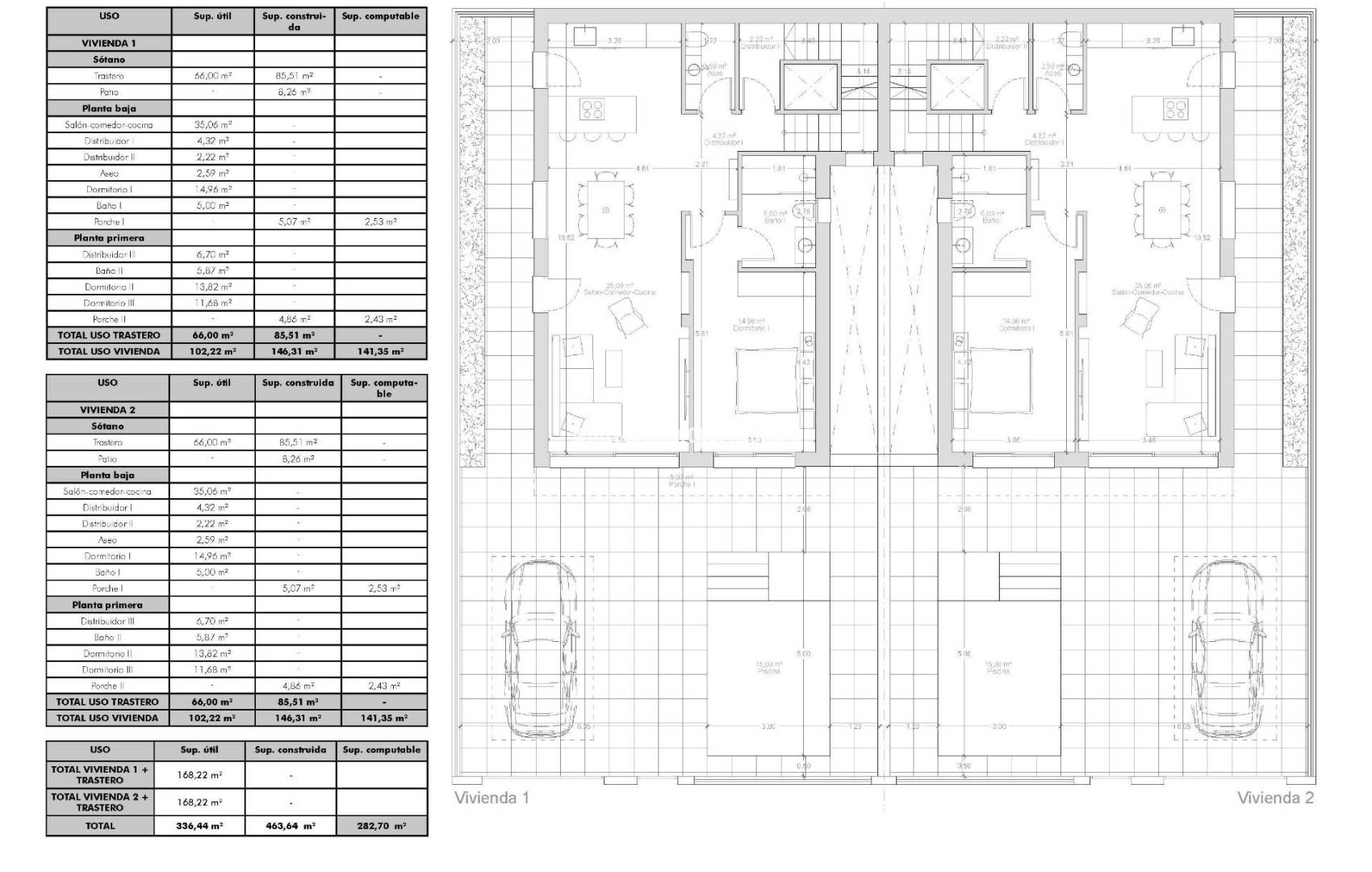
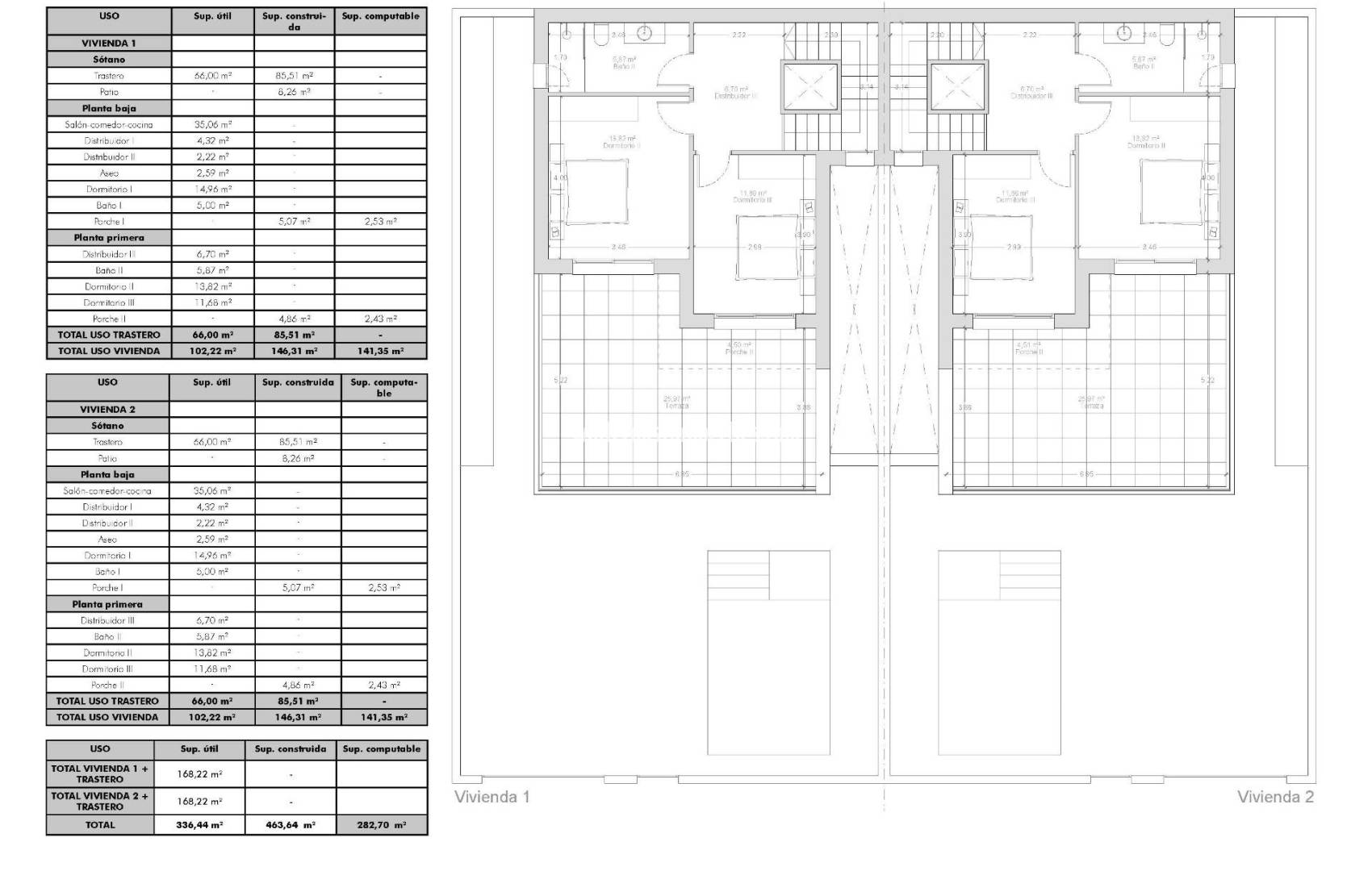
Роскошные новые виллы в Бенихофаре – Costa Blanca Living Привилегированное расположение в Бенихофаре Эти эксклюзивные новые виллы расположены в очаровательном городке Бенихофар, одном из самых популярных районов на побережье Коста-Бланка. Известный своим сочетанием традиций и современного образа жизни, Бенихофар предлагает все необходимые услуги, включая супермаркеты, аптеки, банки, рестораны и местные магазины. Комплекс стратегически расположен всего в 10 км от золотых пляжей Гуардамар-дель-Сегура и всего в 30 км от аэропорта Аликанте, что делает его идеальным местом как для постоянного проживания, так и для отдыха. Просторный и современный дизайн Каждая вилла спроектирована в современном стиле с максимальным использованием пространства и естественного освещения. Планировка включает три спальни (одна на первом этаже и две на втором) и три ванные комнаты (в том числе одна в подвале), что делает их идеальными для семей и гостей. Гостиная открытой планировки с обеденной зоной плавно переходит в полностью оборудованную кухню, создавая теплую и функциональную обстановку. Большие окна делают дом светлым. Премиум-оснащение и дополнительные удобства Эти виллы выделяются высококачественной отделкой и продуманными деталями: Подвал площадью 66 м² с ванной комнатой, галереей и прачечной Частный бассейн, солярий с барбекю и раковиной Декоративный камин в гостиной Частная парковка на территории участка Лифт от подвала до верхнего этажа 3 фотоэлектрические солнечные панели и светодиодное освещение во всем доме Предварительно установленный кондиционер Полностью оборудованные ванные комнаты с мебелью и душевыми перегородками Размер участка от 200 м2 Образ жизни и окрестности Бенихофар сочетает в себе очарование традиционной испанской деревни и удобство современных услуг. Любители природы будут наслаждаться близлежащим природным парком, идеальным для прогулок и велосипедных прогулок. Для любителей гольфа, гольф-клуб La Marquesa Golf находится всего в 5 км, а несколько других лучших полей для гольфа находятся в радиусе 15 км. Семьи могут посетить аквапарки в Рохалесе (4 км) и Торревьехе (12 км) или исследовать оживленный город Торревьеха, расположенный всего в 12 км. Отличная транспортная доступность Виллы имеют удобный доступ к автомагистралям N-332 и AP-7, что обеспечивает быстрое сообщение с Аликанте, Эльче, Ориуэла-Коста и Мурсией. Этот район предлагает идеальный баланс между спокойствием, удобствами и доступностью. Дом вашей мечты на побережье Коста-Бланка Насладитесь роскошью, комфортом и средиземноморским образом жизни в этих потрясающих виллах новой постройки в Бенихофаре. Свяжитесь с нами сегодня, чтобы получить более подробную информацию и договориться о просмотре вашего будущего дома.
Это ориентировочная информация, которая может подвеграться изменениям и не является частью будущего контракта. Расходы на покупку не включены в цену объекта.