
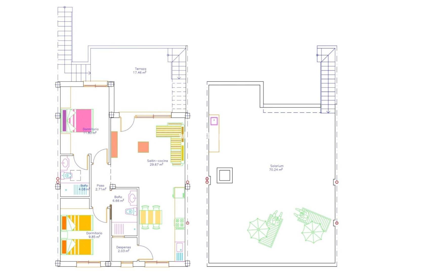
Современные апартаменты и пентхаусы с солярием в Сан-Хавьере, недалеко от Мар-Менор Выгодное расположение в Сан-Хавьере, недалеко от пляжа Этот новый жилой комплекс из 16 современных домов расположен в оживленном городе Сан-Хавьер, Мурсия, всего в 3,5 км от спокойных вод Мар-Менор. Этот район хорошо известен своим круглогодичным солнцем, расслабленным прибрежным образом жизни и отличными услугами. В шаговой доступности вы найдете супермаркеты, рестораны, спортивные сооружения и повседневные удобства, что делает это место идеальным как для постоянного проживания, так и для отдыха. Средиземноморское побережье находится всего в 10 минутах езды на автомобиле и предлагает широкий выбор пляжей и набережных. Выбор между первыми этажами с садом или верхними этажами с частным солярием Покупатели могут выбрать между квартирами на первом этаже с 3 спальнями и 2 ванными комнатами, одна из которых примыкает к спальне, с террасой на передней стороне и частным садом с летней кухней на задней стороне. В качестве альтернативы, квартиры на верхних этажах предлагают 2 спальни и 2 ванные комнаты, также с одной примыкающей к спальне, террасу на передней стороне и большой частный солярий с летней кухней, идеально подходящий для наслаждения солнцем круглый год. Каждая планировка была тщательно разработана, чтобы максимально использовать открытое пространство и естественное освещение. Привлекательные общие зоны для отдыха Жилой комплекс включает в себя красиво благоустроенную общую зону с бассейном с джакузи, парковкой для велосипедов и зелеными садами, где жители могут расслабиться и пообщаться в спокойной обстановке. Качественные характеристики, разработанные для современного комфорта Каждый объект построен в соответствии с высокими стандартами комфорта и энергоэффективности. Наружная столярка из антрацитового ПВХ с терморазрывом и двойным остеклением обеспечивает отличную изоляцию и защиту от солнца. Кухни полностью оборудованы бытовой техникой. Дома включают в себя предварительную установку для канального кондиционирования и аэротермальную систему для горячей воды, что обеспечивает более низкое потребление энергии. Ванные комнаты поставляются с туалетным столиком, зеркалом и душевой перегородкой. Каждая недвижимость также включает в себя одно выделенное парковочное место. Отличная транспортная доступность и близлежащие достопримечательности Сан-Хавьер предлагает отличные дорожные соединения и легкий доступ к ключевым пунктам назначения в регионе. Пляжи Мар-Менор 3,5 км Средиземноморские пляжи 10 км Гольф-клубы Roda Golf и Mar Menor Golf — 8 км Пристань для яхт Los Alcazares — 7 км Аэропорт Мурсия Корвера — 30 км Аэропорт Аликанте — 75 км Торговый центр Zenia Boulevard — 30 км Наслаждайтесь средиземноморским образом жизни в Сан-Хавьере Этот комплекс предлагает идеальное сочетание местоположения, комфорта и жизни на свежем воздухе рядом с морем и полями для гольфа. Свяжитесь с нами сегодня, чтобы получить дополнительную информацию или договориться о посещении вашего будущего дома в Сан-Хавьере.
Это ориентировочная информация, которая может подвеграться изменениям и не является частью будущего контракта. Расходы на покупку не включены в цену объекта.