
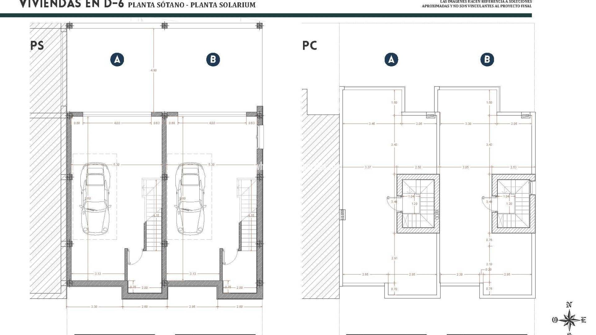
Новые таунхаусы с солярием и подземным гаражом в Бигастро Вега Баха Эксклюзивный комплекс из двух современных домов Этот бутиковый проект нового строительства состоит всего из двух таунхаусов в тихом городке Бигастро, расположенном в районе Вега Баха на юге Коста Бланка. Эти дома, спроектированные с практичной планировкой на нескольких уровнях, сочетают в себе пространство, комфорт и энергоэффективность в хорошо связанном жилом районе. Бигастро известен своей спокойной атмосферой, традиционным испанским характером и отличным доступом к близлежащим городам, пляжам и услугам. Он предлагает расслабленный образ жизни, находясь при этом рядом со всем необходимым для повседневной жизни, что делает его идеальным как для постоянного проживания, так и для отдыха. Просторная планировка на четырех уровнях Каждый дом состоит из подвала, первого этажа, второго этажа и солярия на крыше, что обеспечивает просторные внутренние и внешние жилые зоны. Подвал площадью 59 м2 спроектирован как частный гараж с автоматической дверью, предлагая безопасную парковку и дополнительное место для хранения. На первом этаже вы найдете светлую гостиную открытой планировки с кухней, гостевой туалет и две террасы, одну спереди и одну сзади, что обеспечивает естественное освещение и вентиляцию в течение всего дня. На первом этаже расположены 3 спальни и 2 ванные комнаты, одна из которых примыкает к спальне, а также дополнительная терраса. На верхнем уровне частный солярий на крыше площадью около 40 м2 предоставляет идеальное место для отдыха, принятия солнечных ванн или создания зоны отдыха на открытом воздухе. Качественные характеристики и энергоэффективные системы Эти дома построены с использованием современных материалов и продуманных деталей, чтобы обеспечить комфорт и эффективность, в том числе: Усиленная входная дверь Аэротермальная система для горячей воды Фотоэлектрическая солнечная панель Электрические жалюзи в гостиной и спальнях Предварительная установка канального кондиционирования Моторизованные гаражные ворота Жители также имеют доступ к общественному бассейну в пределах урбанизации, что добавляет дополнительную ценность для отдыха и релаксации. Удобное расположение рядом с пляжами и услугами Центр города Бигастро 0,5 км Город Ориуэла 5 км Пляжи Гуардамар-дель-Сегура 15 км Торговый центр Zenia Boulevard 20 км Больница Vega Baja 10 км Международный аэропорт Аликанте 48 км Несколько полей для гольфа в радиусе 15 км Близлежащая автомагистраль AP 7 обеспечивает быстрое сообщение с Аликанте, Мурсией и прилегающими прибрежными городами. Отличная возможность в растущем жилом районе Благодаря наличию местных магазинов, школ, спортивных сооружений, парков и ресторанов, Бигастро становится все более популярным среди национальных и международных покупателей, которые ищут высокое качество жизни и хорошее транспортное сообщение. Свяжитесь с нами сегодня, чтобы получить дополнительную информацию или договориться о посещении этих эксклюзивных новых таунхаусов в Бигастро.
Это ориентировочная информация, которая может подвеграться изменениям и не является частью будущего контракта. Расходы на покупку не включены в цену объекта.