
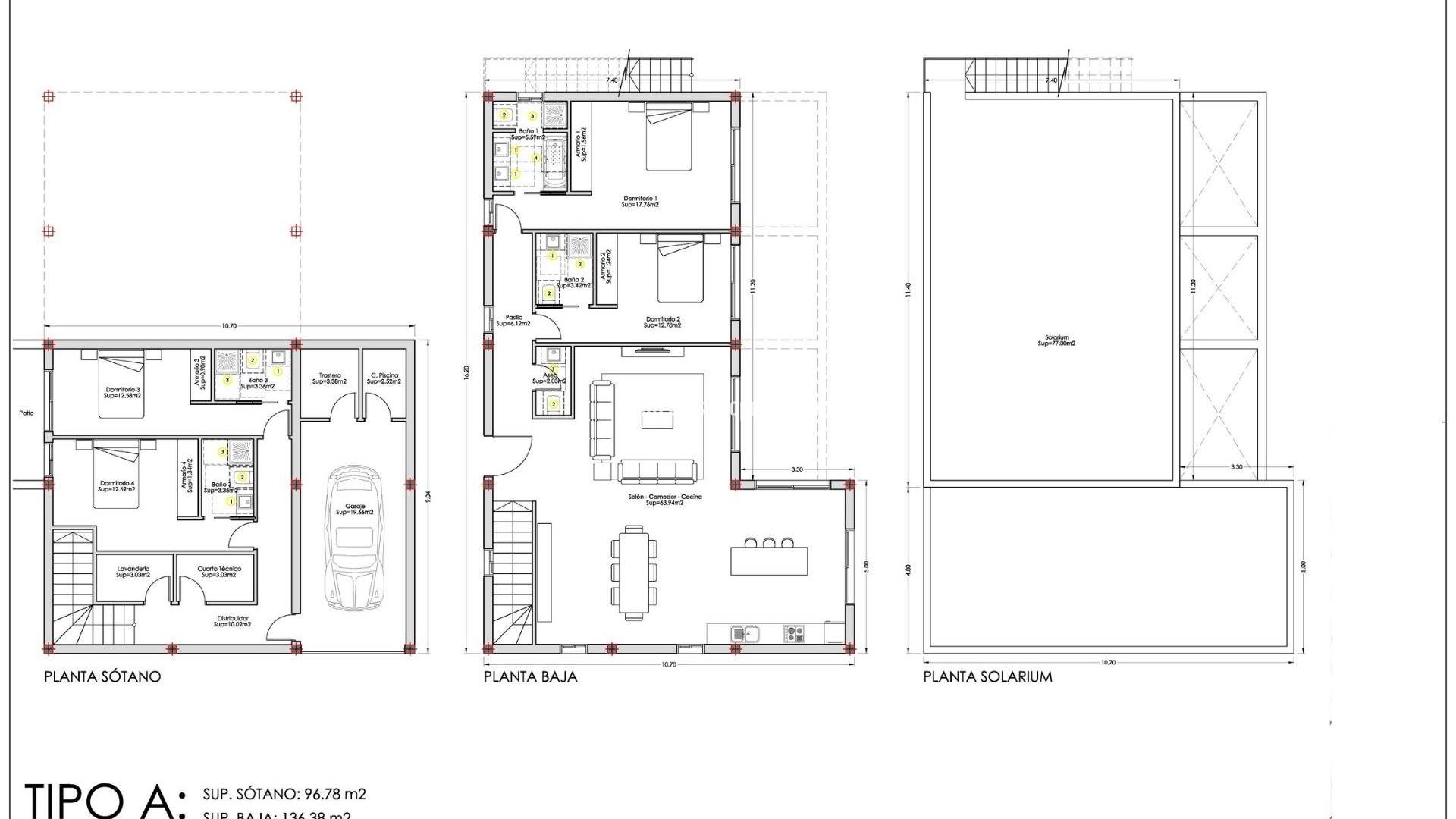
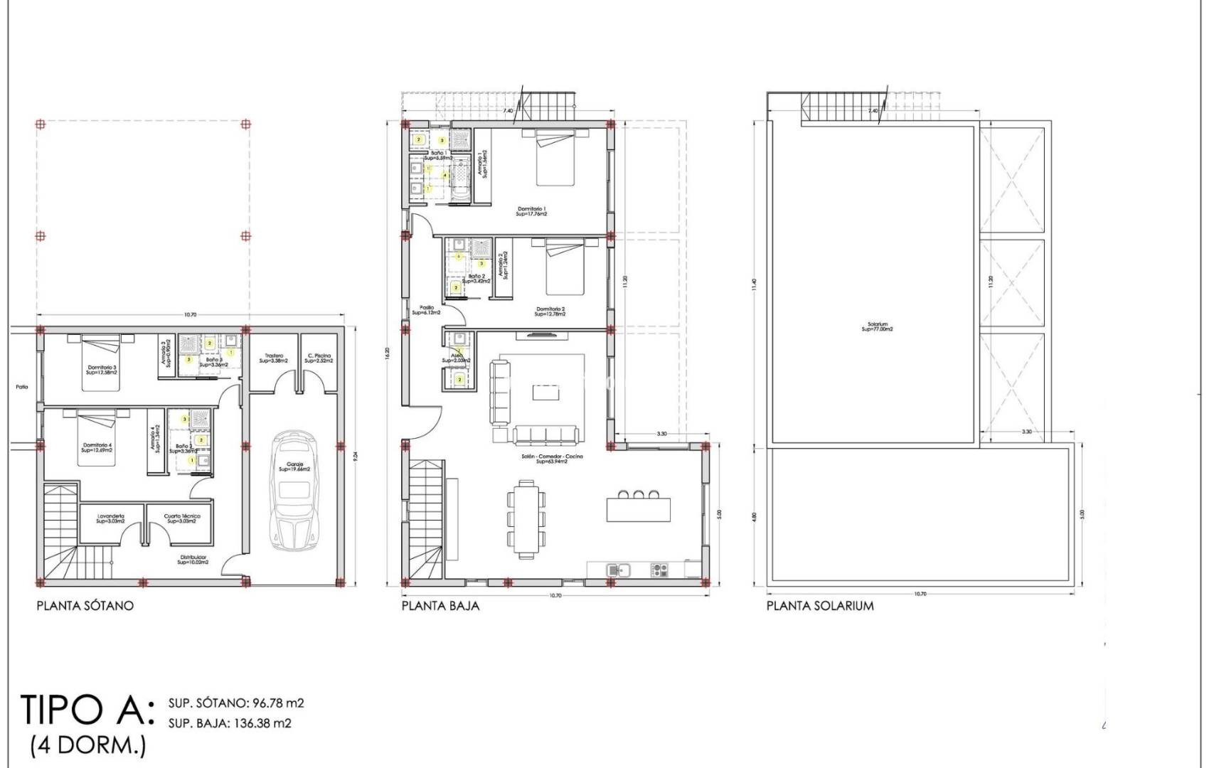
Роскошные новые виллы в Финестрате недалеко от Бенидорма Эксклюзивная коллекция экологичных отдельно стоящих вилл Этот престижный комплекс состоит из 36 отдельно стоящих вилл в популярном районе Баия Гольф в Финестрате, всего в 3,5 км от побережья Средиземного моря. Созданные для сочетания роскоши, комфорта и экологичности, эти современные дома предлагают исключительный образ жизни на побережье Коста-Бланка, в окружении природы, но в то же время недалеко от всех удобств. Каждая вилла имеет 3 или 4 просторные спальни, частный ландшафтный сад и частный бассейн-инфинити. Из некоторых вилл открывается потрясающий вид на море, а все объекты расположены на просторных участках площадью более 500 м2 с застроенной площадью от 222 м2. Гибкая планировка с подвалом и солярием на крыше Покупатели могут выбрать из четырех различных планировок, все из которых тщательно разработаны для максимального использования пространства и естественного освещения. Каждая вилла имеет подвал с частной парковкой, кладовой, прачечной и двумя спальнями с ванными комнатами, соединенными с английским патио для естественного освещения и вентиляции. На первом этаже расположены одна или две дополнительные спальни с ванными комнатами, гостевой туалет и открытая кухня, соединенная с гостиной и столовой, с прямым выходом на террасу и к бассейну. Каждая вилла увенчана солярием на крыше, откуда открывается панорамный вид на горы или море и где можно установить джакузи. Высококачественная отделка и энергоэффективность по стандарту BREEAM Эти виллы построены в соответствии со стандартами сертификации BREEAM, что гарантирует отличную энергоэффективность и экологическую ответственность. В число премиальных характеристик входят: Алюминиевые окна с двойным остеклением, терморазрывом и электрическими жалюзи Полностью установленная система канального кондиционирования Моторизованные ворота для въезда автомобилей Частный бассейн и ландшафтный сад Современная кухня от PORCELANOSA, оборудованная бытовой техникой Дизайнерские ванные комнаты с мебелью, зеркалами и душевыми кабинами Керамическая плитка PORCELANOSA Выгодное расположение рядом с пляжами, гольф-полями и магазинами Финестрат — очаровательный городок, расположенный между горами и морем, который предлагает спокойствие, находясь всего в нескольких минутах от оживленного Бенидорма. Этот район сочетает в себе природную красоту с отличной инфраструктурой, международными школами, ресторанами и торговыми центрами. Расстояния до основных достопримечательностей Пляжи Бенидорма 3,5 км Торговый центр La Marina 1 км Гольф-клуб Puig Campana 3 км Старый город Бенидорма 4 км Аэропорт Аликанте 55 км Доступ к автомагистрали A7 2 км Воплотите в жизнь свою средиземноморскую мечту в Финестрате Эти виллы предлагают идеальный баланс между роскошью, природой и транспортной доступностью на побережье Коста-Бланка. Свяжитесь с нами сегодня, чтобы получить дополнительную информацию или договориться о частном просмотре этих исключительных новостроек в Финестрате.
Это ориентировочная информация, которая может подвеграться изменениям и не является частью будущего контракта. Расходы на покупку не включены в цену объекта.