
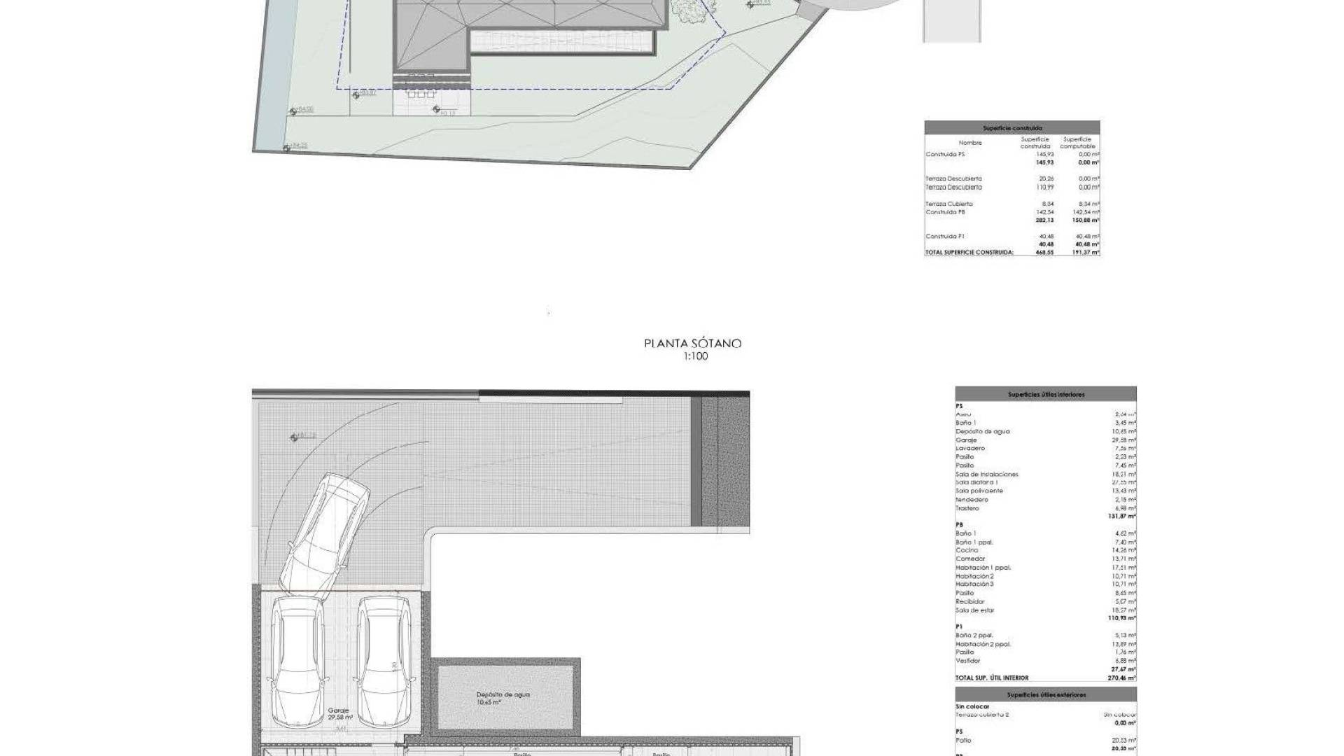
Современная новая вилла с роскошными удобствами в Хавеа Современная средиземноморская жизнь на побережье Коста-Бланка Эта потрясающая новая вилла в Хавеа сочетает в себе высококачественную отделку, элегантный дизайн и оптимальную функциональность на трех просторных уровнях. Расположенная в одном из самых привлекательных прибрежных городов на севере Коста-Бланки, вилла предлагает спокойную жилую среду, окруженную зелеными горами, природными парками и прекрасными пляжами. Хавеа славится кристально чистой водой, традиционной гастрономией и средиземноморским образом жизни, что делает ее идеальным местом как для постоянного проживания, так и для инвестиций. Просторный подвал, спроектированный для универсальности Подвал тщательно спроектирован с учетом потребностей современного образа жизни. Он включает в себя открытый гараж на две машины, ванную комнату, гостевой туалет, открытую комнату, многофункциональную комнату и патио, которое обеспечивает естественное освещение помещения. Этот этаж предоставляет безграничные возможности, независимо от того, планируете ли вы создать тренажерный зал, комнату для развлечений, офис или гостевую комнату. Элегантный первый этаж с соединенными жилыми помещениями На первом этаже находится светлая гостиная-столовая, которая плавно переходит в полностью оборудованную кухню, создавая идеальное место для семейных собраний. Прихожая, гостевой туалет и коридоры добавляют практичности и плавности. На этом уровне расположены две комфортабельные спальни с общей современной ванной комнатой и просторная главная спальня с ванной комнатой, обеспечивающая уединение и комфорт. Роскошная главная спальня на верхнем этаже Верхний этаж отдан под вторую главную спальню, которая представляет собой эксклюзивное уединенное место с собственной ванной комнатой, гардеробной и прихожей. Это уединенное пространство обеспечивает комфорт и спокойствие, а также прекрасный вид на окружающие зеленые ландшафты. Открытая зона, спроектированная для средиземноморского климата Открытые зоны недвижимости созданы для того, чтобы наслаждаться жизнью на свежем воздухе круглый год. На первом этаже есть две крытые террасы и две открытые террасы. Одна из крытых террас окружает бассейн, идеально подходящий для летнего отдыха, а открытая терраса рядом с кухней идеально подходит для обедов и встреч на свежем воздухе. Оснащенная полами с подогревом и канальной системой кондиционирования, вилла гарантирует комфорт в любое время года. Выгодное расположение в Хавеа Пляж Эль-Ареналь 3 км Порт и пристань для яхт Хавеа 7 км Гольф-клуб Хавеа 3 км Аэропорт Аликанте 100 км Аэропорт Валенсии 125 км Ваш средиземноморский дом ждет вас Если вы ищете роскошную резиденцию, дом для отдыха или надежную долгосрочную инвестицию, эта вилла предлагает исключительный образ жизни в Хавеа. Свяжитесь с нами сегодня, чтобы договориться о посещении и открыть для себя свой будущий дом на побережье Коста-Бланка.
Это ориентировочная информация, которая может подвеграться изменениям и не является частью будущего контракта. Расходы на покупку не включены в цену объекта.