
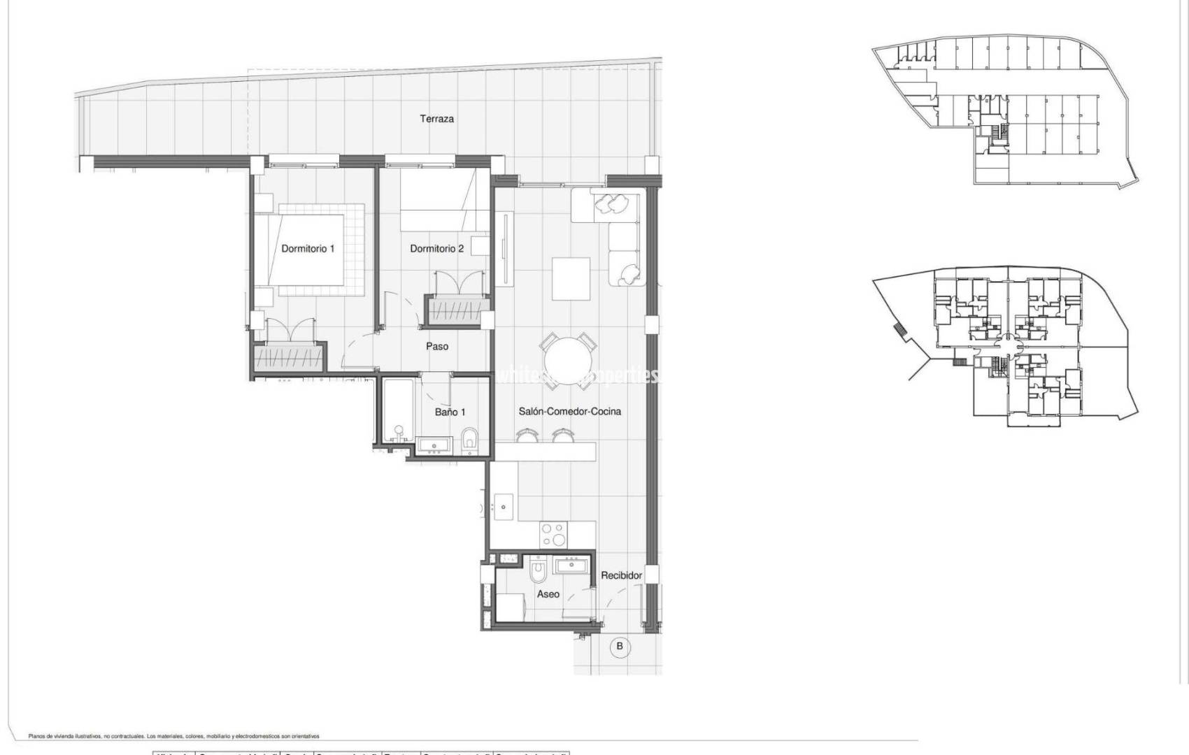
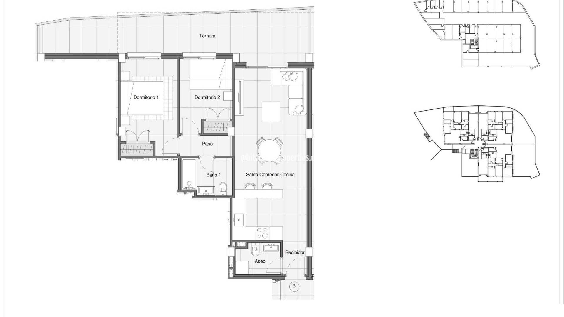
Новые квартиры в Бигастро, Коста Бланка Современное жилье в Вега-Баха-дель-Сегура Этот новый жилой комплекс расположен в самом сердце региона Вега-Баха-дель-Сегура, в очаровательном городке Бигастро, Аликанте. Известный своей спокойной атмосферой и традиционным окружением, Бигастро предлагает отличное соотношение природы, комфорта и близости к основным прибрежным направлениям Коста Бланка. Расположенный всего в нескольких минутах от Ориуэлы и в непосредственной близости от Торревьехи и Гуардамар-дель-Сегура, этот район идеально подходит для тех, кто ищет спокойствие, не отказываясь от транспортной доступности и удобств. Современные апартаменты с открытыми пространствами Здание состоит из первого этажа и трех верхних этажей и предлагает современные апартаменты с 2 спальнями, 1 ванной комнатой и 1 гостевым туалетом, с достаточным пространством для добавления дополнительной душевой кабины. Каждая квартира была спроектирована так, чтобы максимально использовать пространство и естественное освещение. Апартаменты на первом этаже имеют большие террасы или частные сады, апартаменты на средних этажах — просторные террасы, а пентхаусы — частные солярии, идеально подходящие для жизни на открытом воздухе круглый год. Качественная отделка и включенные в стоимость удобства Все апартаменты сдаются с высококачественной отделкой, разработанной для комфорта и эффективности. В них установлены канальные кондиционеры, меблированные кухни с бытовой техникой, электрические жалюзи, а также ванные комнаты с мебелью, зеркалами и душевыми перегородками. К каждому дому прилагается подземное парковочное место, а некоторые квартиры также имеют частную кладовую. Общие зоны и средиземноморский образ жизни Жилой комплекс предлагает хорошо спроектированный общий бассейн и ландшафтные сады, создающие расслабляющую атмосферу для жителей. Окруженный традиционными сельскохозяйственными угодьями, пологими холмами и пешеходными тропами, этот район приглашает к активному отдыху на свежем воздухе, такому как прогулки и велосипедные прогулки, поддерживая здоровый средиземноморский образ жизни в безопасной и гостеприимной обстановке. Расположение Бигастро и местные услуги Бигастро — уютный муниципалитет на юге Аликанте, рядом с которым находятся все необходимые услуги, включая супермаркеты, школы, медицинские центры, спортивные сооружения и разнообразные гастрономические заведения. Несмотря на спокойную обстановку, город имеет отличное дорожное сообщение через автомагистраль AP 7, что делает путешествие по Коста-Бланке быстрым и легким. Расстояния до основных достопримечательностей Центр города Ориуэла: 5 км Пляжи Гуардамар-дель-Сегура: 25 км Торревьеха: 30 км Торговый центр Zenia Boulevard: 30 км Международный аэропорт Аликанте-Эльче: 55 км Ближайшие поля для гольфа: 20 км Идеальный дом или возможность для инвестиций Если вы ищете постоянное место жительства, дом для отдыха или выгодную инвестицию на побережье Коста-Бланка, эти новые апартаменты в Бигастро предлагают современный дизайн, отличное соотношение цены и качества и прекрасное расположение. Свяжитесь с нами сегодня, чтобы получить дополнительную информацию или договориться о просмотре и приобрести свой новый дом в регионе Вега-Баха.
Это ориентировочная информация, которая может подвеграться изменениям и не является частью будущего контракта. Расходы на покупку не включены в цену объекта.