
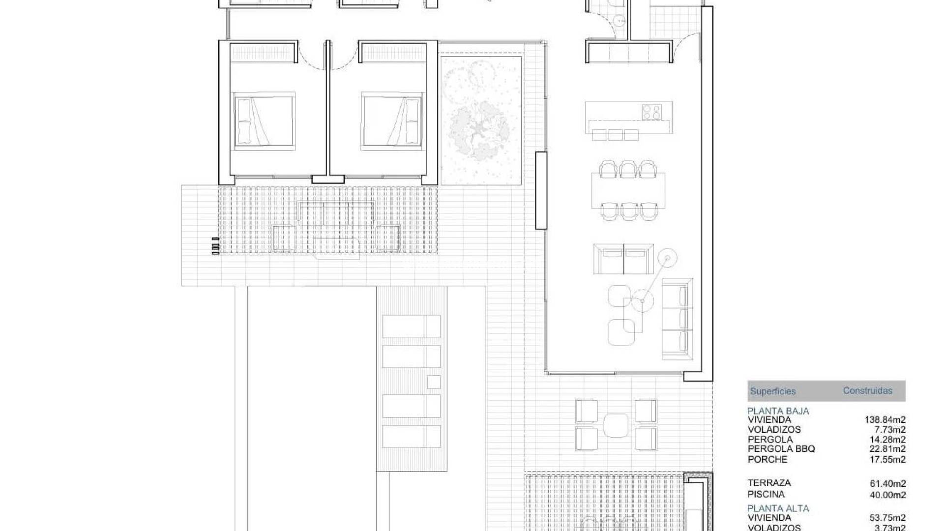
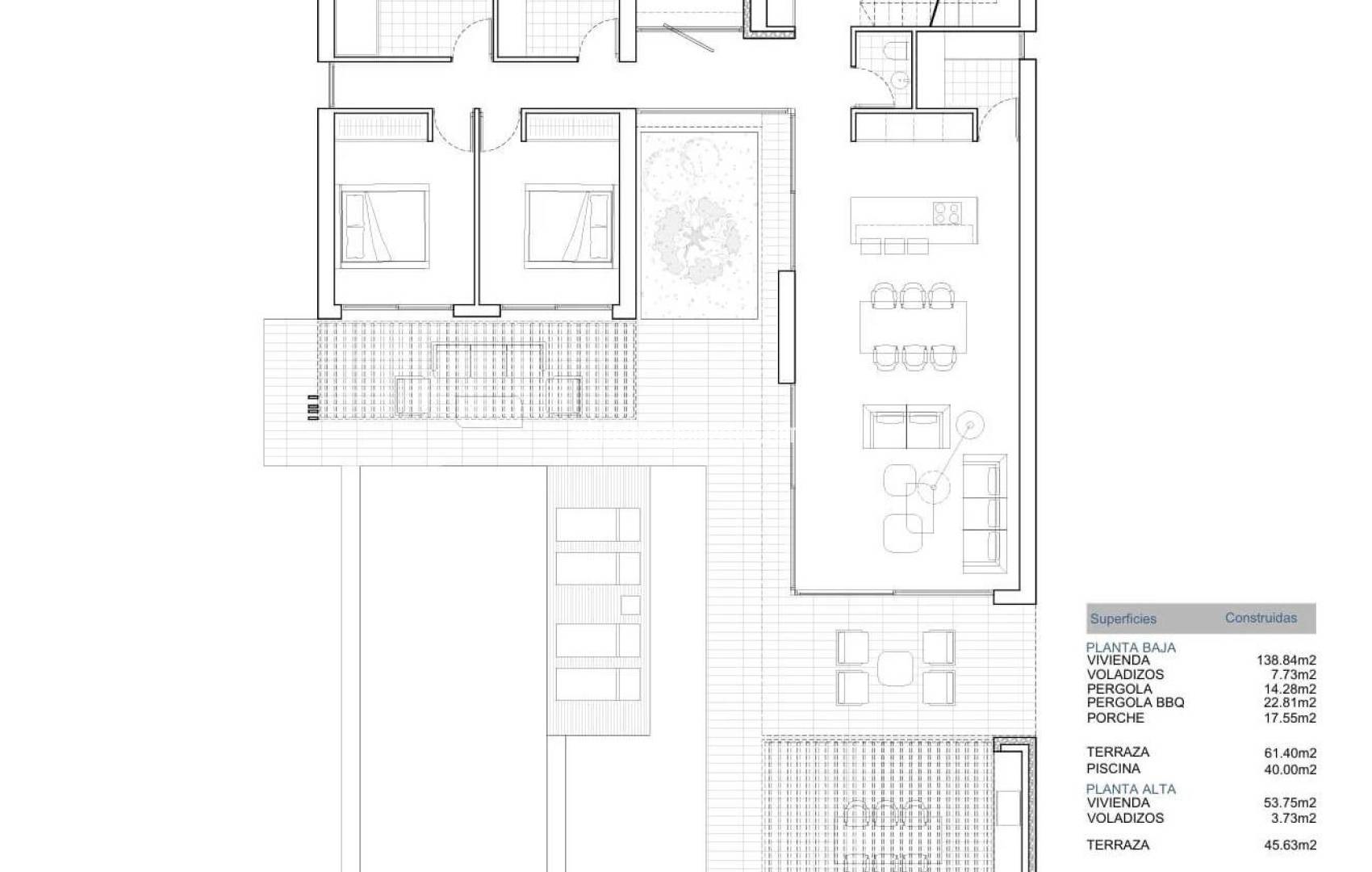
Современная новая вилла у моря в Хавеа Эксклюзивная средиземноморская жизнь в Хавеа Откройте для себя эту потрясающую современную виллу, расположенную в одном из самых популярных и спокойных районов Хавеа, всего в 800 метрах от моря. Расположенная среди сосен и недалеко от знаменитых бухт Кала-де-ла-Баррака и Кала-дель-Портиксол, эта резиденция предлагает привилегированный образ жизни в окружении природы и красоты побережья. Хавеа, расположенная на побережье Коста-Бланка между Аликанте и Валенсией, известна своими кристально чистыми водами, очаровательным старым городом и мягким климатом круглый год, что делает ее одним из самых желанных мест в Средиземноморье. Элегантный дизайн и светлые открытые пространства Эта вилла, спроектированная с учетом комфорта и стиля, отличается современной архитектурой с мягкими линиями, большими окнами и плавной интеграцией внутреннего и внешнего пространства. Естественный свет заливает каждый уголок, создавая теплую и уютную атмосферу, идеальную как для проживания, так и для развлечений. Вилла расположена на двух этажах и включает в себя Открытую гостиную и столовую с беспрепятственным выходом на террасы и к бассейну Полностью меблированную кухню открытой планировки 3 спальни и 2 ванные комнаты плюс 1 гостевой туалет Прачечную и кладовую Частный сад, террасы и бассейн с летней кухней Частная главная спальня и открытый образ жизни На первом этаже расположены две спальни, ванная комната и просторные зоны для общения. На верхнем этаже главная спальня представляет собой уединенное убежище с ванной комнатой, просторной гардеробной и террасой площадью 45 м2, идеально подходящей для наслаждения видом на восход солнца и средиземноморским бризом. Открытое пространство было спроектировано для отдыха и включает в себя частный бассейн, солнечные террасы и пышную растительность, которые обеспечивают спокойствие и уединение. Выгодное расположение на северном побережье Коста-Бланки Хавеа предлагает исключительный образ жизни с прекрасными пляжами, пешеходными маршрутами, пристанями для яхт, полями для гольфа и ресторанами высокой кухни. Город находится в 92 км от Аликанте и в 105 км от Валенсии. Основные расстояния Пляж и Кала-дель-Портиксоль: 0,8 км Порт и пристань для яхт Хавеа: 8 км Гольф-клуб Хавеа: 10 км Аэропорт Аликанте: 100 км Аэропорт Валенсии: 125 км Ваш средиземноморский дом ждет вас Если вы ищете постоянное место жительства, роскошный дом для отдыха или выгодную инвестицию, эта вилла обеспечит вам уединение, комфорт и исключительное расположение на побережье. Свяжитесь с нами сегодня, чтобы получить дополнительную информацию или договориться о просмотре этого эксклюзивного современного дома в Хавеа.
Это ориентировочная информация, которая может подвеграться изменениям и не является частью будущего контракта. Расходы на покупку не включены в цену объекта.