
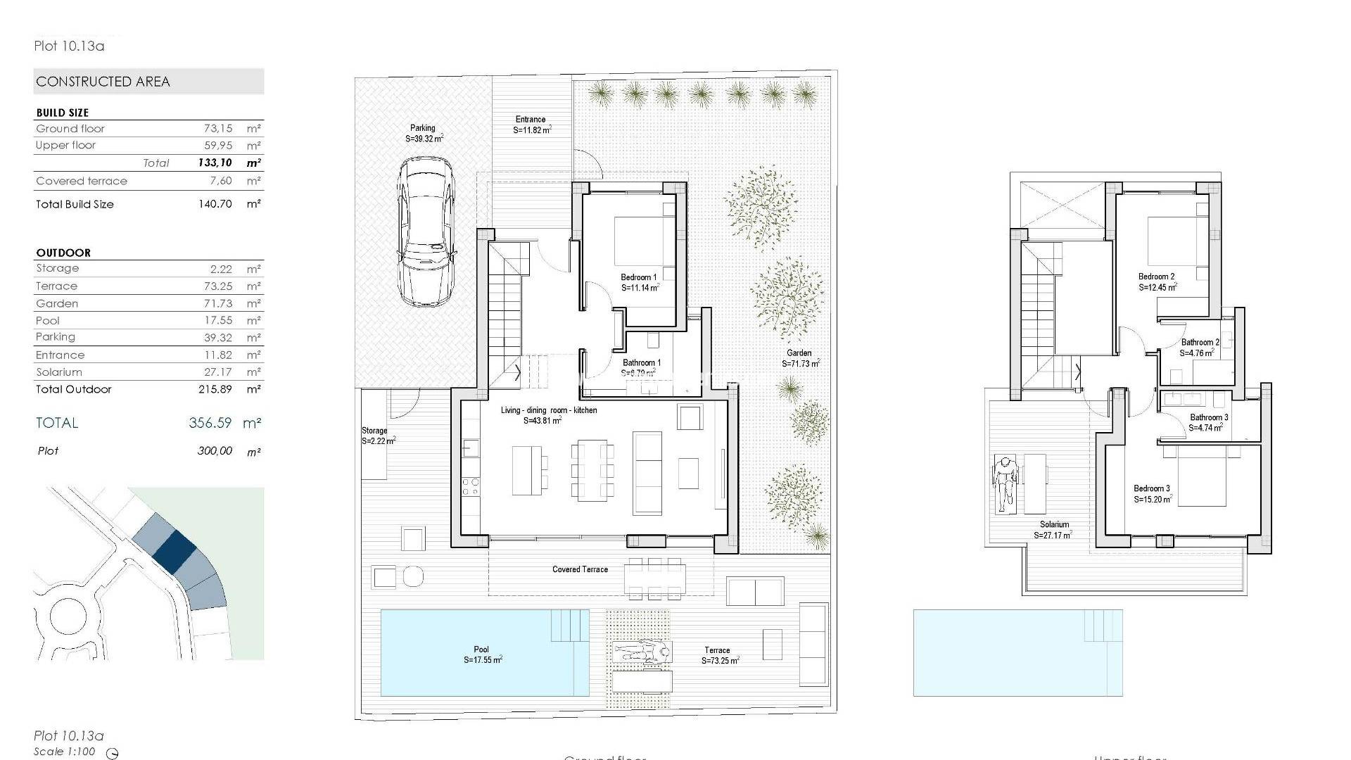
Новые виллы на первой линии пляжа Рода Гольф с частным бассейном Эксклюзивная жизнь рядом с полем для гольфа на побережье Коста Калида Эти современные виллы на первой линии в Рода Гольф (Мурсия) предлагают идеальное сочетание роскоши, комфорта и средиземноморского стиля жизни. Расположенный всего в 3 км от золотых пляжей Мар Менор, этот жилой проект идеально подходит для любителей гольфа, водных видов спорта и тех, кто ищет спокойный, но хорошо связанный с транспортной инфраструктурой дом на побережье Коста Калида. Комплекс окружен услугами, ресторанами, магазинами и спортивными сооружениями, что обеспечивает удобство для повседневной жизни. Просторные виллы с частными бассейнами Каждая вилла тщательно спроектирована на двух уровнях с общей площадью 140 м². Планировка включает: 3 спальни (2 с ванными комнатами) 3 полностью оборудованные ванные комнаты Светлая гостиная с открытой кухней Спальня на первом этаже для удобства Две спальни на втором этаже с прямым выходом на открытую террасу Наслаждайтесь жизнью на свежем воздухе с частным бассейном, просторной террасой на первом этаже и солнечной террасой на втором этаже, откуда открывается панорамный вид на поле для гольфа и где можно наслаждаться солнцем в течение всего дня. Каждая недвижимость также включает в себя частное парковочное место на участке и большую внешнюю кладовую. Высококачественные характеристики Эти дома построены в соответствии с самыми высокими стандартами и оснащены: Подогревом полов в ванных комнатах Моторизованными алюминиевыми жалюзи во всех спальнях Полностью оборудованными ванными комнатами с мебелью, зеркалами, освещением и стеклянными душевыми перегородками Современными кухнями с бытовой техникой Предварительной установкой канального кондиционирования в гостиной и спальнях Солнечными панелями с инвертором для энергоэффективности Выгодное расположение в Рода Гольф Эти виллы расположены в престижном курорте Roda Golf & Beach Resort, в окружении пышных фервеев и средиземноморских пейзажей. Расстояния до основных достопримечательностей: Пляжи Мар Менор: 3 км Торговый центр Dos Mares: 5 км Пристань для яхт Lo Pagán: 6 км Клуб Roda Golf: в шаговой доступности Международный аэропорт Мурсии (Корвера): 35 км Аэропорт Аликанте: 85 км Город Картахена: 30 км Живите по-средиземноморски Будь то постоянное место жительства, место для отдыха или инвестиция в аренду, эти виллы предлагают идеальное сочетание элегантности, функциональности и местоположения. Свяжитесь с нами сегодня, чтобы запланировать посещение и обеспечить себе виллу на первой линии в Рода Гольф. Дом вашей мечты на Коста Калида ждет вас!
Это ориентировочная информация, которая может подвеграться изменениям и не является частью будущего контракта. Расходы на покупку не включены в цену объекта.