
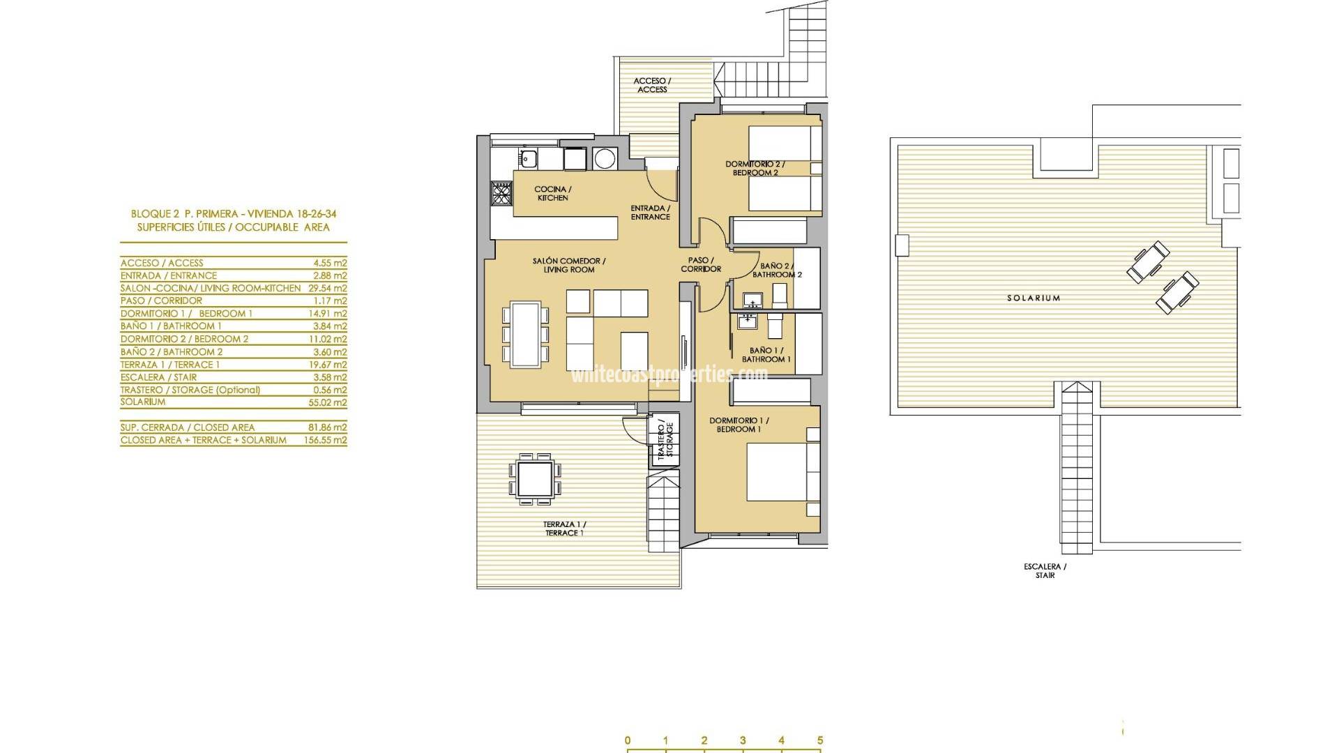
НОВЫЙ ЖИЛОЙ КОМПЛЕКС ИЗ БУНГАЛО АПАРТАМЕНТОВ В ВИСТАБЕЛЛЕ Новый жилой комплекс из бунгало апартаментов в Вистабеле рядом с полем для гольфа. Комплекс с коммунальными зоами и бассейном состоит из 2 и 3 спальных бунгало, на первом этаже с частным садом и на верхнем этаже с частным солярием, кухней открытого плана с гостиной, встроенными шкафами, террасой. Каждая квартира имеет частную парковку. Кладовая за дополнительную плату. В Vistabella Golf найдется место для каждого. Поле спроектировано так, чтобы каждый игрок мог насладиться им от начала и до конца. Волнистые улочки, стратегические бункеры и озера - вот некоторые из особенностей, которые делают его одним из самых привлекательных в этом районе, где каждый удар - это вызов и удовольствие для чувств. 18 лунок Vistabella Golf, пар 72 и длиной более 6 000 метров, были спроектированы в соответствии с рекомендациями современных полей с 4 тройниками большой амплитуды на каждой лунке, широкими фервеями и приподнятыми бункерами. Клубный дом и ресторан Vistabella Golf, а также местные бары и магазины находятся в 5 минутах ходьбы. Оживленный город Сан-Мигель-де-Салинас и Лос-Монтесинос находятся в 5 минутах езды, а прекрасные пляжи Гвардамара, отмеченные Голубым флагом, - в 15 минутах езды. Аэропорт Аликанте находится в 35 минутах езды, а новый аэропорт Корвера Мурсия - в 45 минутах езды.
Это ориентировочная информация, которая может подвеграться изменениям и не является частью будущего контракта. Расходы на покупку не включены в цену объекта.