
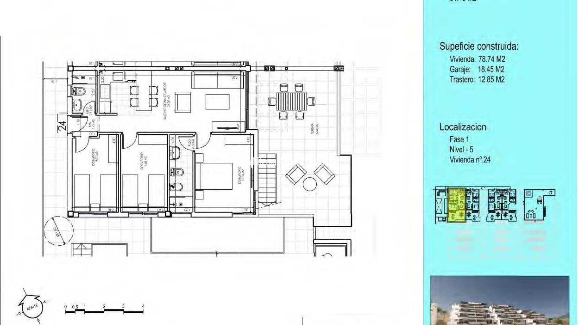
Новые апартаменты с видом на море в Вера-Плайя, Альмерия Откройте для себя этот исключительный новый жилой комплекс в Вера-Плайя, предлагающий 27 современных апартаментов в первой фазе строительства. Этот проект, разработанный с целью объединить комфорт, функциональность и потрясающие виды на Средиземное море, идеально подходит для тех, кто ищет стильный и удобный дом на побережье Коста-де-Альмерия. Современные дома с видом на море Каждая квартира была тщательно спроектирована, чтобы максимально использовать естественное освещение и возможность жизни на свежем воздухе. На выбор предлагаются планировки с 1, 2 и 3 спальнями, с частными садами на первых этажах, просторными террасами на средних этажах и пентхаусами с частными соляриями. Благодаря террасному дизайну, все дома имеют открытые террасы с потрясающим видом на море. Качественная отделка и полностью оборудованные дома Каждая недвижимость полностью меблирована и оборудована, готова к заселению. Особенности: Меблированная кухня с бытовой техникой Полностью оборудованные ванные комнаты с современной сантехникой Система кондиционирования Частная парковка и кладовая Эксклюзивные удобства Изюминкой этого жилого комплекса является общий бассейн, окруженный ландшафтными садами, создающий идеальное место для отдыха, принятия солнечных ванн и семейного досуга. Выгодное расположение в Вера-Плайя Вера-Плайя славится своими длинными песчаными пляжами, непринужденным образом жизни и отличными удобствами. Комплекс расположен в тихом, но хорошо связанном районе с легким доступом к услугам и транспорту. Основные расстояния: Пляж: 700 м Гольф-курорт Desert Springs: 8 км Центр города Вера: 5 км Пристань для яхт и рестораны Гарруча: 6 км Торговый парк Мохакар: 10 км Аэропорт Альмерия: 85 км (около 1 часа) Станция высокоскоростного поезда AVE (в стадии строительства): 3 км Идеальный дом или возможность для инвестиций Если вы ищете постоянное место жительства, место для отдыха или надежную инвестицию, эти новые апартаменты в Вера-Плайя предлагают отличное соотношение цены и качества в одном из самых привлекательных прибрежных районов Альмерии. Сделайте Вера-Плайя своим новым домом и насладитесь идеальным сочетанием современной жизни, видом на море и средиземноморским образом жизни. Свяжитесь с нами сегодня, чтобы запланировать визит и приобрести недвижимость своей мечты на побережье Коста-де-Альмерия.
Это ориентировочная информация, которая может подвеграться изменениям и не является частью будущего контракта. Расходы на покупку не включены в цену объекта.