
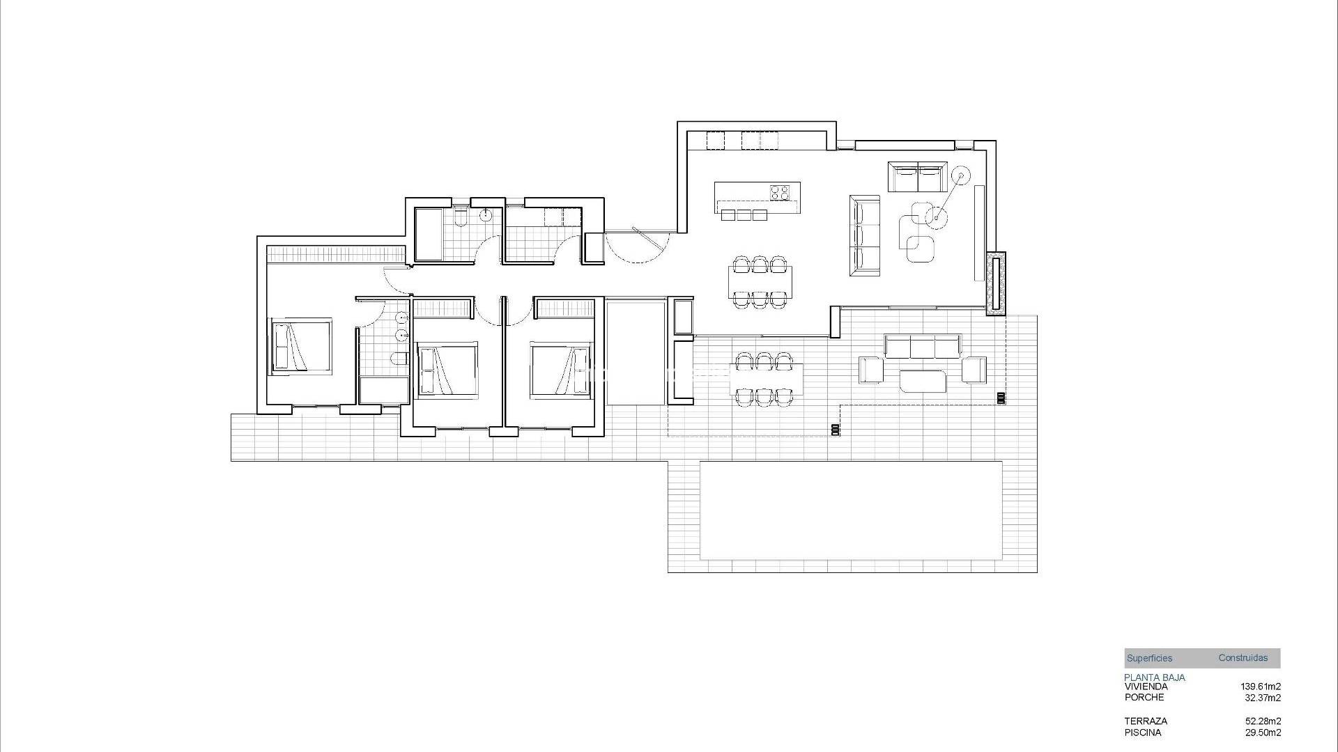
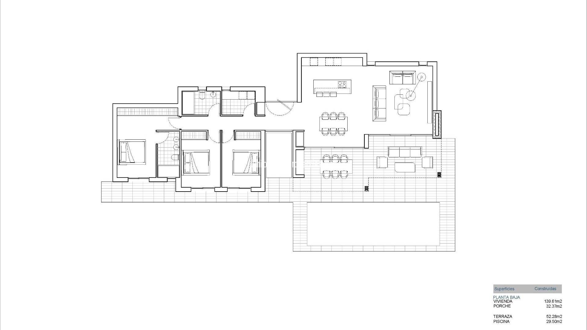
НОВАЯ ВИЛЛА В КАЛЬПЕ Новая вилла, расположенная в одном из жилых районов, предпочитаемых всеми жителями Кальпе, благодаря близости к центру города, пляжам и в то же время потому, что это тихий, но безопасный район, так как он расположен на окраине центра города. Недвижимость была спланирована на одном этаже, что делает этот проект практичным и удобным. Весь участок огорожен и имеет живую изгородь из кипарисов внутри, что обеспечивает уединение и приятную обстановку. Из главного входа в дом мы попадаем в холл, из которого налево мы попадаем в дневную зону, состоящую из гостиной со столовой и открытой кухни с островом. Из гостиной можно выйти на улицу, где есть крытая веранда с барбекю и большая терраса с бассейном площадью 40 м2. С правой стороны дома находится спальная зона с 4 спальнями: главная спальня с гардеробной и ванной комнатой, еще одна спальня с ванной комнатой и две спальни с общей ванной комнатой. Также имеется прачечная. Снаружи есть парковка с беседкой в виде паруса для двух автомобилей. Кальпе, один из городов Ла Марина Альта, расположен на северном побережье провинции Аликанте, в окружении городов Альтеа, Бенидорм, Теулада-Морайра, Бенисса. В Кальпе прекрасно сочетаются старая валенсийская культура и современные туристические удобства. Это прекрасная база, откуда можно исследовать местность или насладиться многочисленными местными пляжами. Только в Кальпе есть три самых красивых песчаных пляжа на побережье. В Кальпе также есть два парусных клуба: Real Club Náutico de Calpe и Club Náutico de Puerto Blanco. Рыбацкая деревушка Кальпе превратилась в туристический магнит. Город расположен в идеальном месте, до него легко добраться по автомагистрали A7 и шоссе N332, ведущему из Валенсии в Аликанте; примерно 1 час езды до аэропорта Аликанте и 1,5 часа до аэропорта Валенсии.
Это ориентировочная информация, которая может подвеграться изменениям и не является частью будущего контракта. Расходы на покупку не включены в цену объекта.