
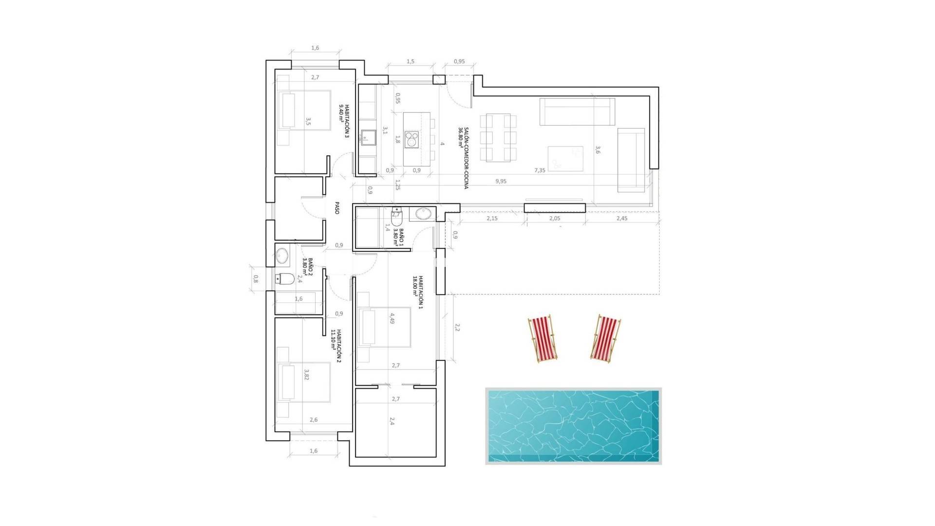
НОВОЙ ЗАСТРОЙКИ ВИЛЛЫ С БАССЕЙНОМ В ХОНДОН-ДЕ-ЛАС-НЬЕВЕС Откройте для себя элегантность и комфорт этих прекрасных отдельно стоящих вилл площадью от 108 до 128 м2, спроектированных для исключительного стиля жизни, все на первом этаже. Наслаждайтесь уединением, которое предлагает эта вилла, где вы сможете расслабиться в собственном саду, создать оазис спокойствия или освежиться в частном бассейне, чтобы насладиться теплыми летними днями. Недвижимость состоит из двух больших зон: Дневная зона: здесь находится просторная гостиная-столовая с американской кухней (кухонная мебель включена), которая через два больших окна соединяется с большой верандой в современном стиле, выходящей на сад и бассейн. В качестве дополнительного пространства имеется прачечная, стратегически расположенная в планировке дома, куда очень легко добраться из любой точки дома. Зона отдыха: в этой зоне расположены 3 спальни. Главная спальня имеет просторную гардеробную и ванную комнату. Также имеется вторая ванная комната для остальных спален и остальной части дома. Расположенная в тихом жилом районе, эта вилла позволяет наслаждаться уединением и спокойствием, в то же время находясь в непосредственной близости от услуг, магазинов, супермаркетов, ресторанов. Это идеальный баланс между умиротворенной уединенностью и удобствами современной жизни. В этом жилом комплексе в Хондон-де-лас-Ньевес каждый день - это возможность соединиться с миром. Хондон-де-лас-Ньевес — муниципалитет в Валенсийском автономном сообществе, Испания. Он расположен на юго-западе провинции Аликанте, в районе Виналопо-Медио. Пляжи и аэропорт Аликанте находятся совсем рядом, всего в 30 минутах езды на машине.
Это ориентировочная информация, которая может подвеграться изменениям и не является частью будущего контракта. Расходы на покупку не включены в цену объекта.