
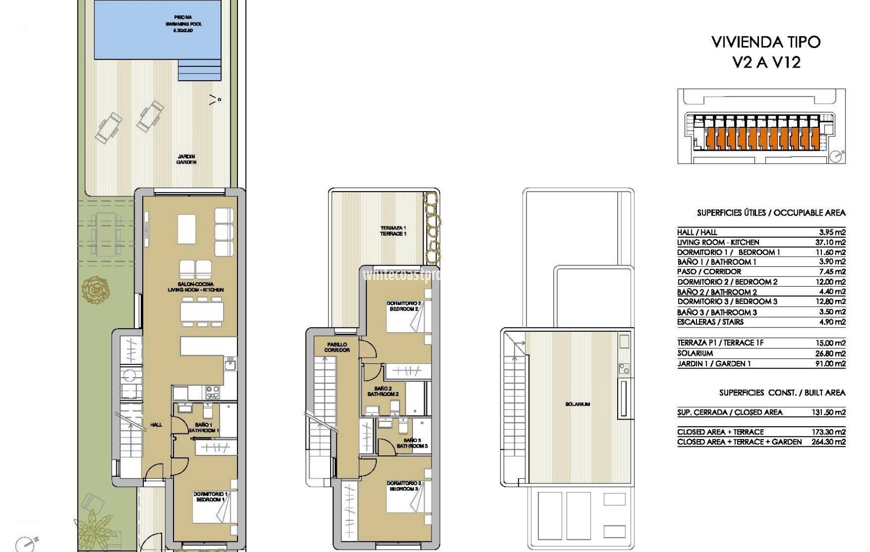
НОВЫЕ ВИЛЛЫ В МИЛ ПАЛЬМЕРАС Новые жилые виллы в Мил Пальмерас предназначены для наслаждения средиземноморским климатом. Каждая вилла имеет великолепные террасы, солярий и красивый сад с дизайнерским бассейном. Непревзойденная ориентация, близость к пляжу и консолидированная урбанизация со спортивными сооружениями и зонами отдыха. Просторные комнаты распределены на 2 этажах. На первом этаже, соединенном с садом, находятся светлая гостиная-столовая плюс кухня, а также спальня с двуспальной кроватью и ванная комната. На втором этаже находятся еще 2 спальни с двуспальными кроватями, каждая со своей ванной комнатой. Фантастический солярий на крыше завершает весь дом. Миль Пальмерас расположен в привилегированном районе Торре-де-ла-Орадада. Его спокойствие, а также близость к пляжу и всем видам услуг делают его непревзойденным анклавом. Вилла расположена недалеко от песчаного пляжа с набережной между Кампоамором и Торре-де-ла-Орадада, со всеми необходимыми удобствами, такими как школы, рестораны, спортивные сооружения и т.д., которые открыты круглый год. В деревне есть небольшая площадь и великолепная "ресторанная аллея" с множеством ресторанов международной кухни, а также природный парк Ло Монте, который является специальным заповедником для птиц. Природный парк Рио Секо также находится здесь для любителей природы и пеших прогулок. Аэропорты Мурсии и Аликанте расположены в 45 минутах езды.
Это ориентировочная информация, которая может подвеграться изменениям и не является частью будущего контракта. Расходы на покупку не включены в цену объекта.