
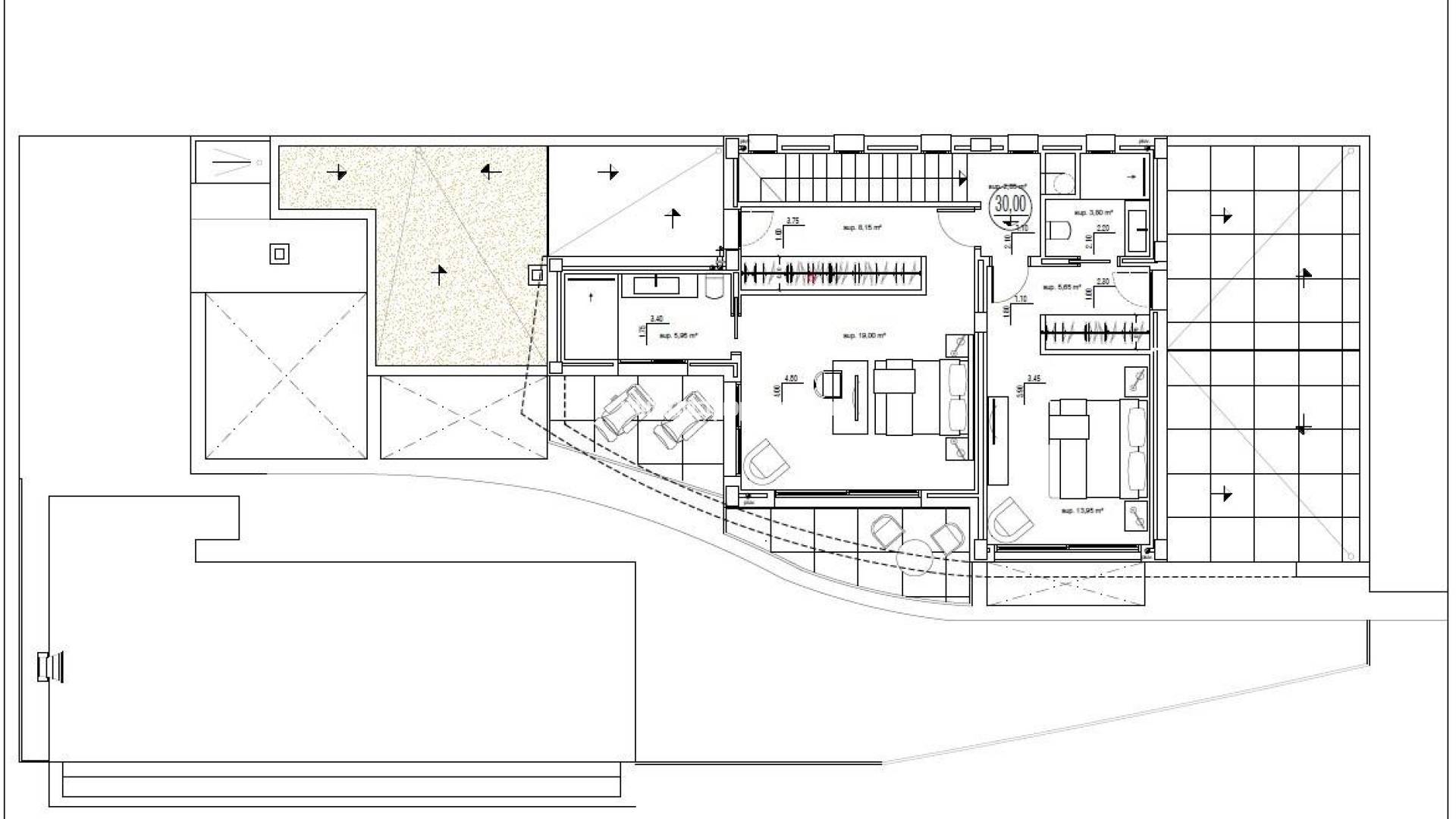
НОВАЯ ВИЛЛА С ВИДОМ НА МОРЕ В БЕНИССЕ Новая вилла класса люкс, построенная на большом участке площадью 1250 м2, с потрясающим видом на море и открытыми видами в сторону Морайры. Морайра, очень удачно расположенная в тихой урбанизации всего в 200 м от пляжа Ла Фустера и в 2 км от центра Кальпе. центра Кальпе. Роскошная вилла расположена на 3 этажах и имеет 4 спальни, 5 ванных комнат, оборудованную кухню открытого плана, гостиную с большими окнами и прямым выходом к бассейну. Красивая терраса с бассейном и зоной барбекю, откуда открывается прекрасный вид на море. Вилла расположена в одном из самых красивых жилых районов Коста Бланки. Города Кальпе, Бенисса и Морайра предлагают необычайно привлекательную береговую линию, представляющую большой живописный и экологический интерес, с изрезанной береговой линией с многочисленными пляжами и скрытыми бухтами. Бенисса расположена между Валенсией и городом Аликанте. Аэропорт Манисес в Валенсии находится в часе езды, а аэропорт Л'Альтет в Аликанте - в 50 минутах езды. Оба аэропорта являются крупными международными аэропортами, обслуживаемыми большим количеством бюджетных авиакомпаний.
Это ориентировочная информация, которая может подвеграться изменениям и не является частью будущего контракта. Расходы на покупку не включены в цену объекта.