
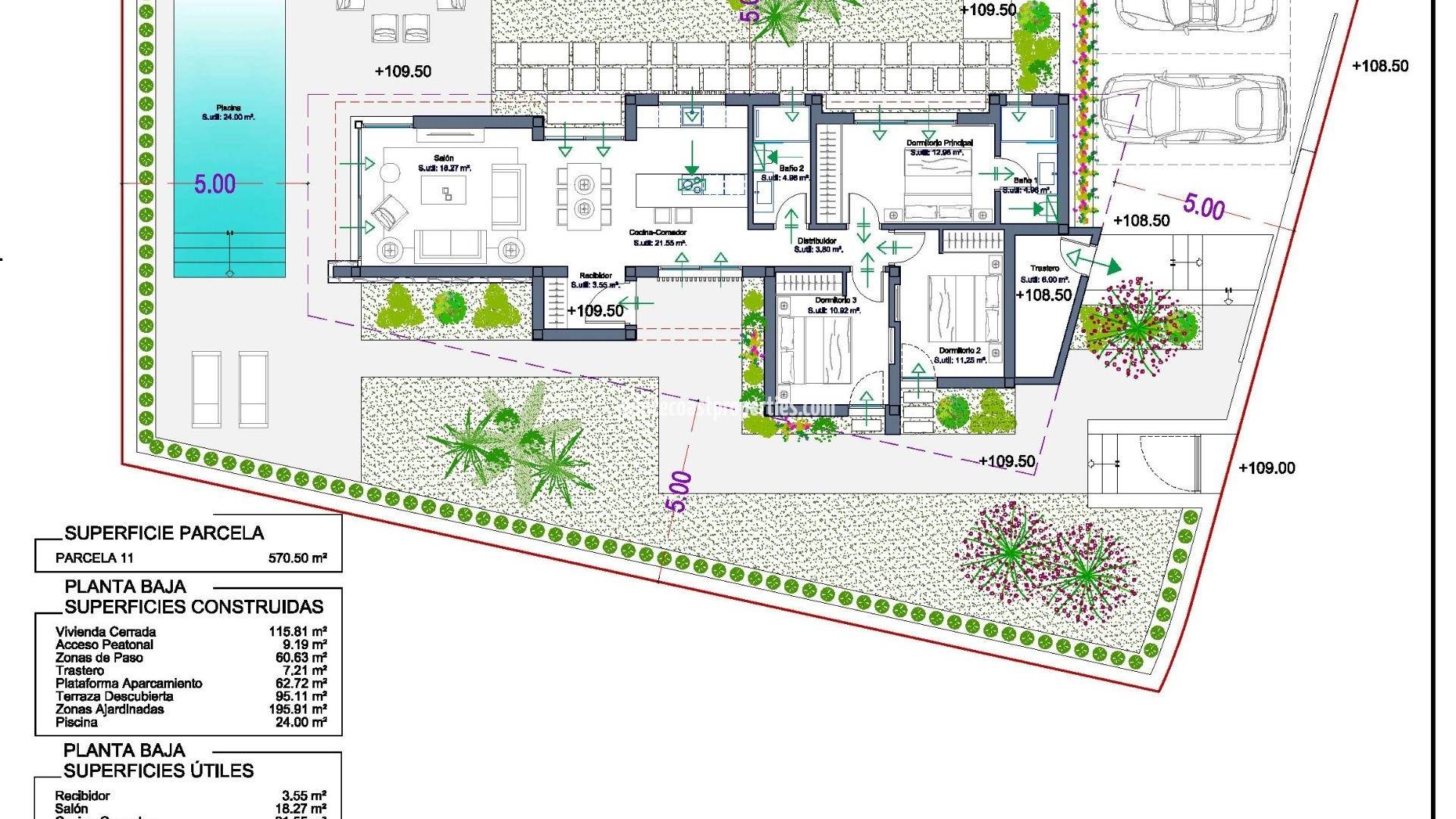
Продажа новых вилл в La Manga Club - роскошная жизнь на престижном курорте Современные, просторные виллы в центре города Откройте для себя потрясающие новые виллы на продажу в La Manga Club, продуманные до мелочей, чтобы удовлетворить потребности современной жизни. Эти роскошные объекты предлагают практичные планировки, высококлассную отделку и доступ ко всем удобствам этого всемирно известного курорта. Расположенный в самом сердце La Manga Club, этот эксклюзивный комплекс включает 29 просторных участков площадью от 500 до 746 м². Покупатели могут выбрать виллы с 2, 3 или 4 спальнями, с частными бассейнами, ландшафтными садами и охраняемой парковкой. Независимо от того, ищете ли вы дом для отдыха или для постоянного проживания, эти виллы предлагают идеальное сочетание комфорта, стиля и удобства. Премиальные характеристики и высококачественная отделка Каждая вилла построена по самым высоким стандартам, в ней использованы современные элементы дизайна и передовые технологии для максимального комфорта. Ключевые особенности включают: Высокоэффективные алюминиевые столярные изделия с термомостами (CORTIZO или аналогичные). Изолирующие двойные стеклопакеты для энергоэффективности и комфорта. Системы домашней автоматизации для управления освещением, электричеством и электроникой. Аэротермальные системы для отопления, охлаждения и горячего водоснабжения. Высокоэффективная вентиляция с управляемыми механическими системами. Системы безопасности, включая сигнализацию и предварительно установленное видеонаблюдение. Эксклюзивное местоположение - курорт Ла Манга Клаб La Manga Club - один из ведущих европейских курортов для спорта и отдыха, предлагающий непревзойденный стиль жизни в потрясающем средиземноморском окружении. Курорт, занимающий территорию в 1 400 акров (560 гектаров), граничит с природными парками и нетронутыми пляжами, обеспечивая захватывающее дух окружение и круглогодичное солнечное сияние. Жители пользуются доступом к удобствам мирового класса, включая: Три чемпионских поля для гольфа на 18 лунок Ракетный клуб с 28 кортами для игры в теннис и падель Фитнес- и спа-центры в Grand Hyatt La Manga Club Golf & Spa Частный пляж и изысканные рестораны Футбольные поля, соответствующие стандартам ФИФА, для любителей спорта Отличное транспортное сообщение и близлежащие достопримечательности La Manga Club имеет прекрасное расположение и отличное транспортное сообщение с крупными европейскими городами: Аэропорт Корвера - 50 км (около 35 минут на машине) Аэропорт Аликанте - 100 км (около 1 часа езды на автомобиле). Другие близлежащие достопримечательности включают: Пляжи - Менее 3 км до нетронутого средиземноморского побережья. Поля для гольфа - на территории отеля есть три чемпионских поля. Торговые центры - Расположены в 10-15 км от отеля, где вы сможете приобрести все необходимые товары. Пристани и порты - в пределах 20 км для любителей парусного спорта и водных видов спорта. Идеальное место для роскошной жизни La Manga Club - это динамичное и безопасное сообщество, идеально подходящее для семей, пенсионеров и любителей гольфа. Наслаждайтесь спокойным и уединенным образом жизни с доступом к первоклассным удобствам, окруженным природной красотой и современными удобствами. Ощутите роскошь жизни во всей ее красе с этими новыми виллами в La Manga Club. Не упустите эту возможность стать владельцем дома на одном из самых престижных европейских курортов. Свяжитесь с нами прямо сейчас, чтобы получить более подробную информацию или запланировать визит.
Это ориентировочная информация, которая может подвеграться изменениям и не является частью будущего контракта. Расходы на покупку не включены в цену объекта.