
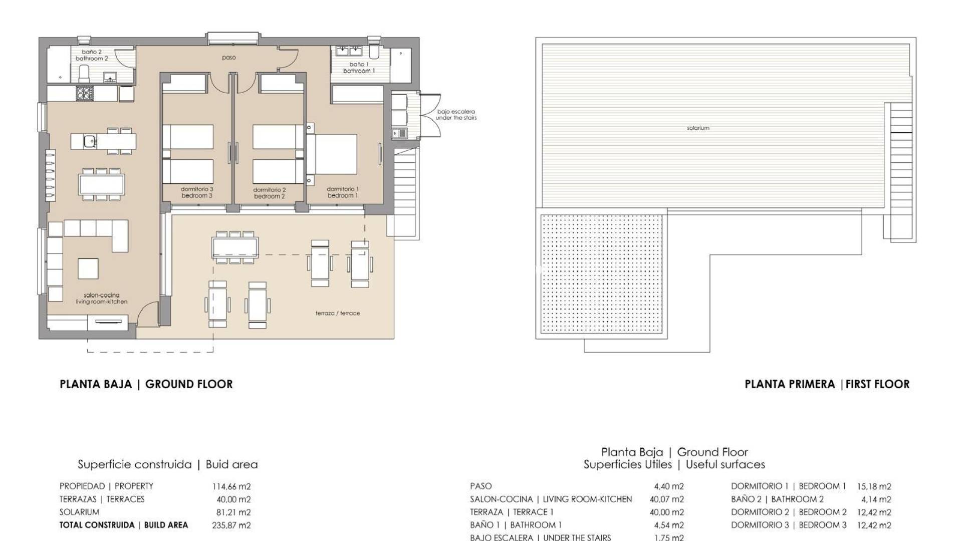
Новые виллы в гольф-курорте Vistabella – Ориуэла Насладитесь современной средиземноморской жизнью в самом сердце Коста-Бланки в этих потрясающих новых виллах в гольф-курорте Vistabella. Расположенный между Сан-Мигель-де-Салинас и Лос-Монтесинос, в муниципалитете Ориуэла, этот эксклюзивный комплекс предлагает роскошь, комфорт и непревзойденное расположение для любителей гольфа и тех, кто ищет высокий уровень жизни. Две различные модели вилл Покупатели могут выбрать один из двух элегантных дизайнов: Одноуровневые виллы с 3 спальнями, 2 ванными комнатами и солярием на крыше. Двухэтажные виллы с 4 спальнями, 3 ванными комнатами и террасой-солярием на первом этаже. Обе модели расположены на участках площадью около 300 м² и включают в себя частный бассейн и парковку на территории. Высочайшее качество и современный комфорт Каждая вилла имеет роскошную отделку, включая полностью установленный кондиционер, оборудованную кухню с бытовой техникой, наружное освещение, электрические жалюзи и элегантные душевые перегородки в ванных комнатах. Сочетание стиля и функциональности гарантирует, что ваш дом будет не только красивым, но и практичным. Эксклюзивный образ жизни на гольф-курорте Vistabella Golf Resort — это закрытый комплекс с 18-луночным полем для гольфа, кортами для паддл-тенниса, боулингом, супермаркетом и множеством баров и ресторанов. В будущем курорт будет модернизирован и станет настоящим 5-звездочным местом отдыха, где появятся шампань-бар, суши-бар, спа-отель, искусственный пляж, теннисный корт, футбольное поле и бар для гурманов. Выгодное расположение на побережье Коста-Бланка Курорт предлагает отличный доступ к лучшим пляжам, полям для гольфа и услугам региона. Расстояния до основных достопримечательностей: Пляж Ла-Мата: 18 км Пляж Гуардамар-дель-Сегура: 20 км Торревьеха: 15 км Аэропорт Аликанте: 55 км Аэропорт Мурсия: 68 км Гольф-клуб Villamartín: 12 км Гольф-клуб Las Colinas: 14 км Дом вашей мечты ждет вас Будь то постоянное место жительства, дом для отдыха или инвестиция в аренду, эти новые виллы в Vistabella Golf Resort предлагают исключительную ценность в одном из самых востребованных прибрежных районов Испании. Свяжитесь с нами сегодня, чтобы организовать просмотр и обеспечить себе место в этом роскошном гольф-комплексе.
Это ориентировочная информация, которая может подвеграться изменениям и не является частью будущего контракта. Расходы на покупку не включены в цену объекта.