
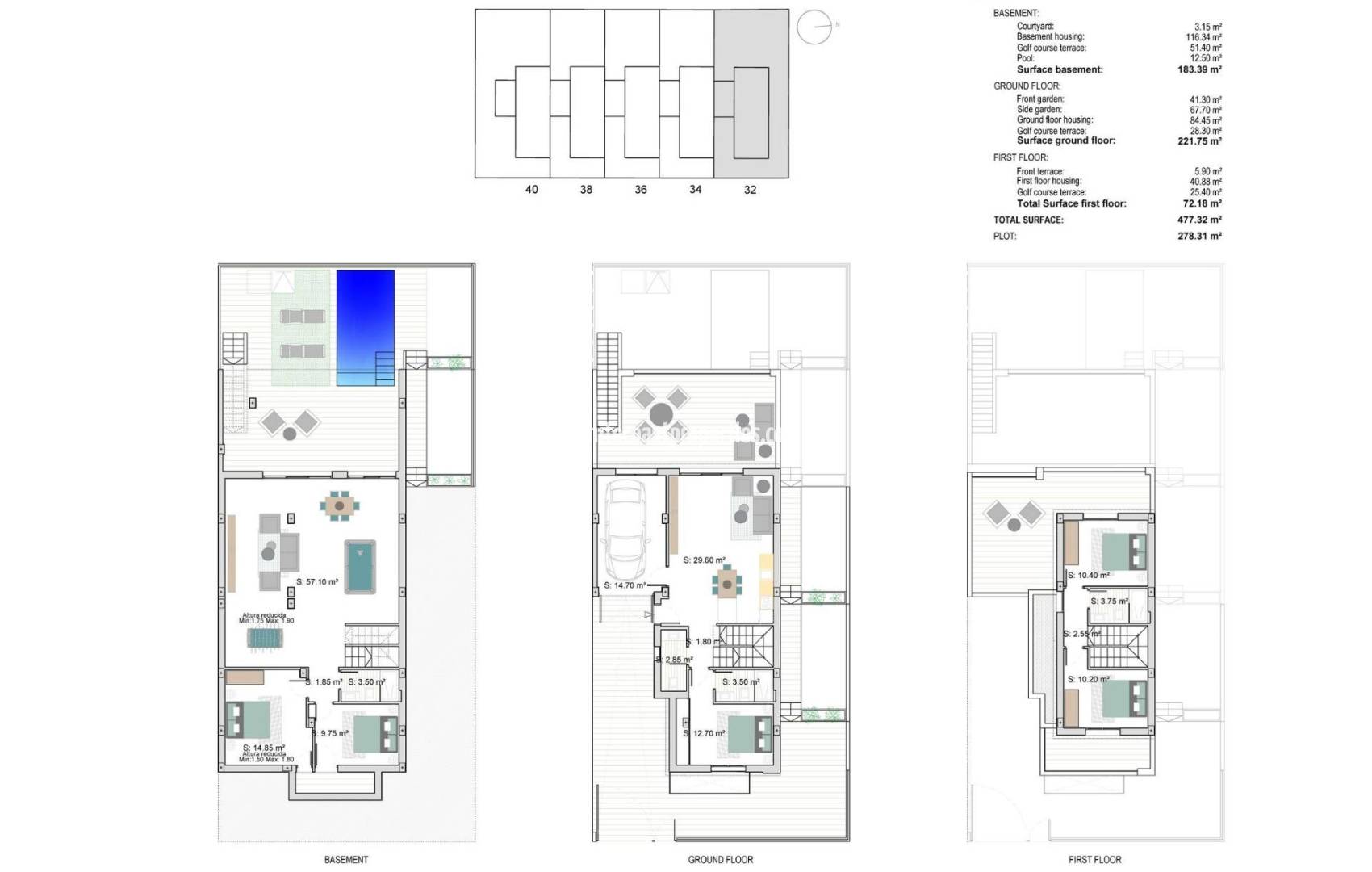
Сдворенные и отдельно стоящие виллы новой постройки в La Serena Golf-Los Alcázares Откройте для себя дом своей мечты в впечатляющих сдворенных и отдельно стоящих виллах, расположенных на первой линии поля для гольфа La Serena в Лос-Алькасарес, где современная жизнь сочетается с потрясающим видом на гольф. Эти тщательно спроектированные дома с 3 спальнями и 4 ванными комнатами идеально подходят для семей, которые ищут роскошь, комфорт и нотку средиземноморского шарма. Спальни и ванные комнаты: Три просторные спальни, спроектированные с учетом комфорта. В каждой спальне есть встроенные шкафы, обеспечивающие достаточно места для хранения вещей. Четыре современные ванные комнаты с высококачественной отделкой и фурнитурой. Уютная открытая кухня и гостиная, идеально подходящие для приема гостей и семейных собраний. Просторная гостиная с большими окнами, которые наполняют пространство естественным светом и открывают потрясающий вид на поле для гольфа. Просторный подвал, который можно использовать как зону отдыха, домашний тренажерный зал или дополнительное хранилище. Выделенное парковочное место для безопасной парковки и удобства. Частный бассейн, окруженный красивым садом, идеально подходит для отдыха и наслаждения солнцем. Просторная терраса для обедов на свежем воздухе и развлечений с живописным видом на поле для гольфа. Установка кондиционера и отопления для комфорта в течение всего года. Близость к местным услугам, включая магазины, рестораны и, конечно же, гольф-поля мирового класса. Лос-Алькасарес известен своими прекрасными пляжами, оживленным сообществом и множеством возможностей для активного отдыха. Расположение обеспечивает идеальный баланс между спокойствием и доступностью, что делает его идеальным местом как для туристов, так и для круглогодичного проживания. Эта недвижимость представляет собой идеальное сочетание современной архитектуры, комфорта и развлечений. Не упустите возможность стать владельцем кусочка рая в Лос-Алькасарес!
Это ориентировочная информация, которая может подвеграться изменениям и не является частью будущего контракта. Расходы на покупку не включены в цену объекта.