
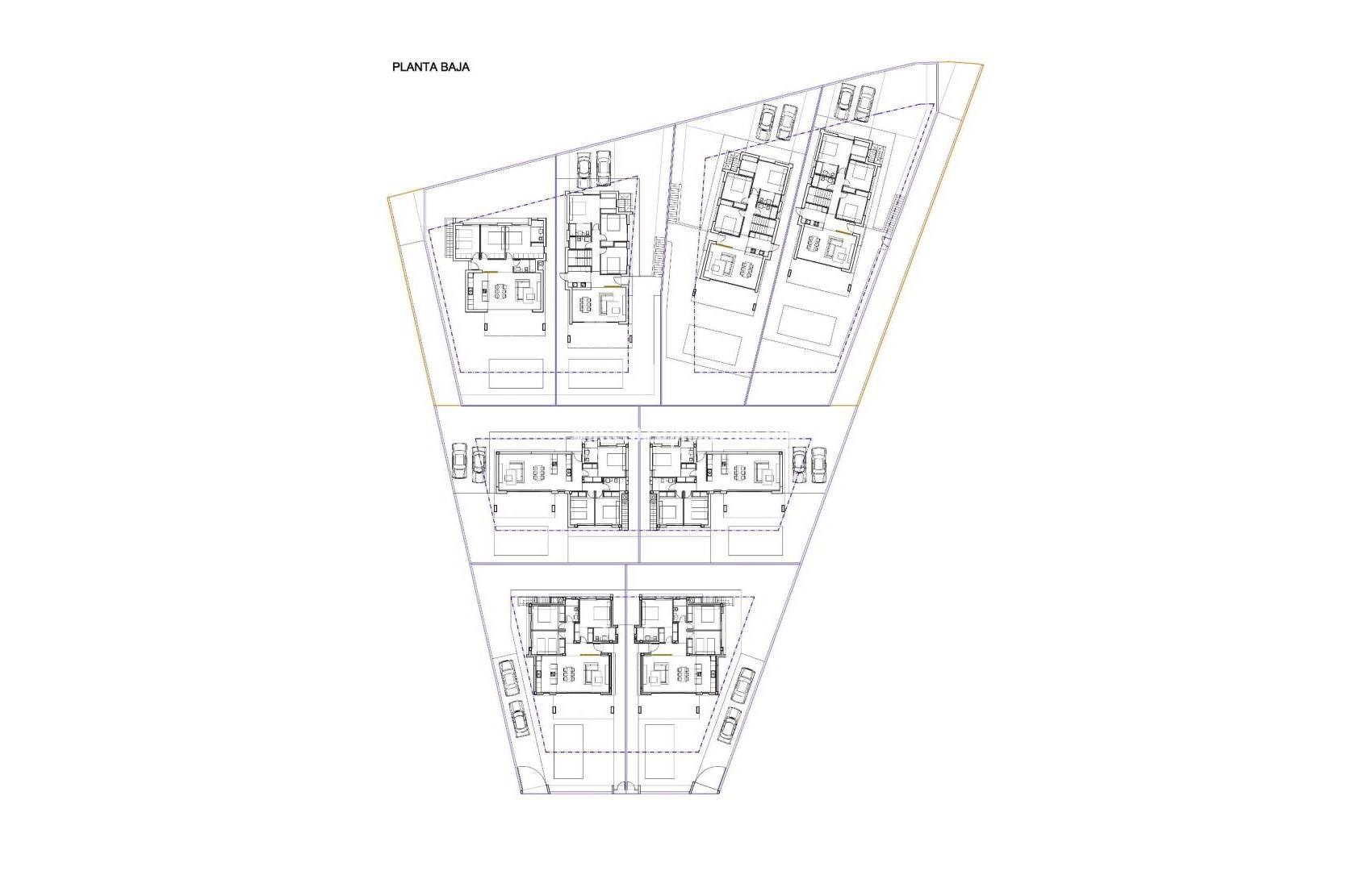
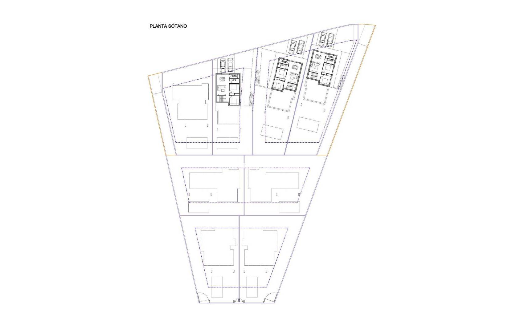
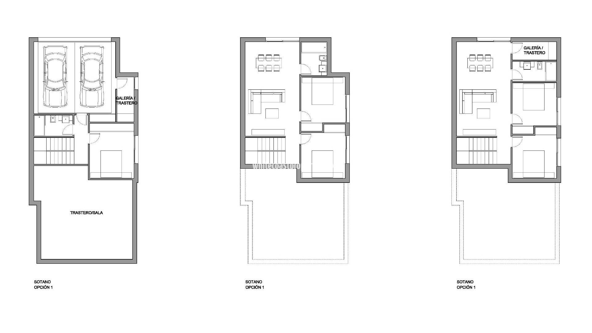
Одноэтажные виллы с частным бассейном в Торревьехе Современные виллы в эксклюзивном районе Лос-Бальконес Откройте для себя эти потрясающие виллы новой постройки, идеально расположенные в урбанизации Лос-Бальконес в Торревьехе. Эти одноэтажные дома, созданные для комфорта и элегантности, предлагают просторные интерьеры, высококачественную отделку и частный бассейн, что делает их идеальным выбором для тех, кто ищет современный средиземноморский образ жизни. Расположенные в тихом районе с развитой инфраструктурой, эти виллы окружены широким спектром услуг, включая рестораны, бары, торговые центры и медицинские учреждения, что обеспечивает удобство и высокое качество жизни. Просторный и функциональный дизайн Каждая из 8 независимых вилл построена на просторном участке площадью более 400 м², что обеспечивает большое пространство для отдыха. В домах имеются: 3 просторные спальни и 2 полностью оборудованные ванные комнаты. Большая гостиная и столовая открытой планировки, созданная для естественного освещения и комфорта. Современная открытая кухня, органично интегрированная в жилое пространство. Частный бассейн, идеально подходящий для отдыха и развлечений. Парковочное место для двух автомобилей на участке. Частный солярий с открытым видом, идеально подходящий для принятия солнечных ванн и отдыха. Дополнительный цокольный этаж, где можно разместить дополнительные жилые или складские помещения (за дополнительную плату). Высококачественные характеристики и отделка Построенные из первоклассных материалов и предназначенные для роскошного образа жизни, эти виллы включают в себя: Подогрев полов в ванных комнатах, обеспечивающий комфорт круглый год. Пакет освещения, улучшающий атмосферу и функциональность. Широкий выбор вариантов отделки, позволяющий покупателям подобрать отделку в соответствии со своими предпочтениями. Удачное расположение рядом с пляжами и услугами Лос-Бальконес - это очень востребованный жилой район Торревьехи, известный своей спокойной обстановкой и в то же время близостью к основным объектам инфраструктуры. Эти виллы имеют прекрасное транспортное сообщение с основными районами: Пляжи Торревьехи - всего в 3 км. Международный аэропорт Аликанте - 40 км (около 35 минут езды). Торговые центры (бульвар Ла Зения, Хабанерас) - 10-15 минут на машине. Поля для гольфа (Villamartín, Las Ramblas, Campoamor) - 15-20 минут на машине. Центр города Торревьеха - 3 км. Отличная инвестиция и дом мечты Благодаря своему первоклассному расположению, современному дизайну и первоклассной отделке, эти виллы предлагают невероятную возможность для инвестиций, отдыха или постоянного проживания на побережье Коста Бланка. Свяжитесь с нами сегодня, чтобы получить дополнительную информацию или запланировать просмотр!
Это ориентировочная информация, которая может подвеграться изменениям и не является частью будущего контракта. Расходы на покупку не включены в цену объекта.