Murcia · Fuente Álamo · Las Palas Вилла · Новостройка

Референция: NB-57027
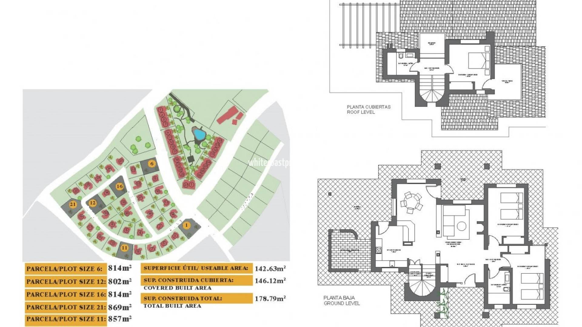
  • 178m2
  • 850m2
  • 3
  • 2

Характеристики

  • 178m2
  • 178m2
    Участок
  • 3
    Спальней
  • 2
    Ванные комнаты

Подробные детали

Near Golf / Golf Resort Property
Double Bedrooms: 3
Location: Coastal, Rural, Urbanisation
Key Ready
Terrace: 60 Msq.
Useable Build Space: 148 Msq.
Beach: 7500 Meters
Garden
Gated
Solarium: Yes
Number of Parking Spaces: 1
Air Conditioning: Pre-Installed
Класс энергосбережения
Класс энергосбережения:
B

Описание

ГОТОВАЯ ВИЛЛА С КЛЮЧОМ В ФУЭНТЕ АЛАМО, МУРСИЯ Жилой комплекс таунхаусов, самостоятельных и двухквартирных вилл в Фуэнте-Аламо, Мурсия. На выбор предлагаются семь различных моделей домов, разработанных на любой вкус. Дизайн в деревенском стиле в сочетании с высококачественными материалами и акцентом на комфортное жилое пространство - здесь найдется что-то для каждого. Жители этого частного поселка, состоящего из красивых, просторных домов, также смогут наслаждаться собственными общими садами и бассейнами. Эта вилла необычного дизайна имеет 3 спальни и 2 ванные комнаты, отдельную кухню, гостиную с дверями патио, ведущими на крытую веранду. Возможность установки частного бассейна за дополнительную плату. Фуэнте-Аламо-де-Мурсия - город и муниципалитет в регионе Мурсия, на юге Испании. Он расположен в 22 км к северо-западу от Картахены и в 35 км к юго-западу от Мурсии. Город лежит в бассейне реки Мар Менор, окруженной горами Альгарробо, Лос-Гомес, Лос-Викториас и Карраской. Вода с этих гор стекает в Рамбла-де-Фуэнте-Аламо, а затем в Мар-Менор. Фуэнте-Аламо расположен в 30 минутах езды от аэропорта Мурсия - Корвера.

Место нахождения

Обмен валют и ипотека

Это ориентировочная информация, которая может подвеграться изменениям и не является частью будущего контракта. Расходы на покупку не включены в цену объекта.

Расчет ипотеки

Обмен валют

  • Фунты стерлингов: 276.512 GBP
  • Русский рубль: 276.512 RUB
  • Швейцарский франк: 292.992 CHF
  • Китайский юань: 2.559.648 CNY
  • Доллар США: 376.352 USD
  • Шведская крона: 3.469.440 SEK
  • Норвежская корона: 3.462.880 NOK

Запрос на дополнительную информацию

Responsable del tratamiento: , Finalidad del tratamiento: Gestión y control de los servicios ofrecidos a través de la página Web de Servicios inmobiliarios, Envío de información a traves de newsletter y otros, Legitimación: Por consentimiento, Destinatarios: No se cederan los datos, salvo para elaborar contabilidad, Derechos de las personas interesadas: Acceder, rectificar y suprimir los datos, solicitar la portabilidad de los mismos, oponerse altratamiento y solicitar la limitación de éste, Procedencia de los datos: El Propio interesado, Información Adicional: Puede consultarse la información adicional y detallada sobre protección de datos Aquí.

Аналогичная недвижимость