
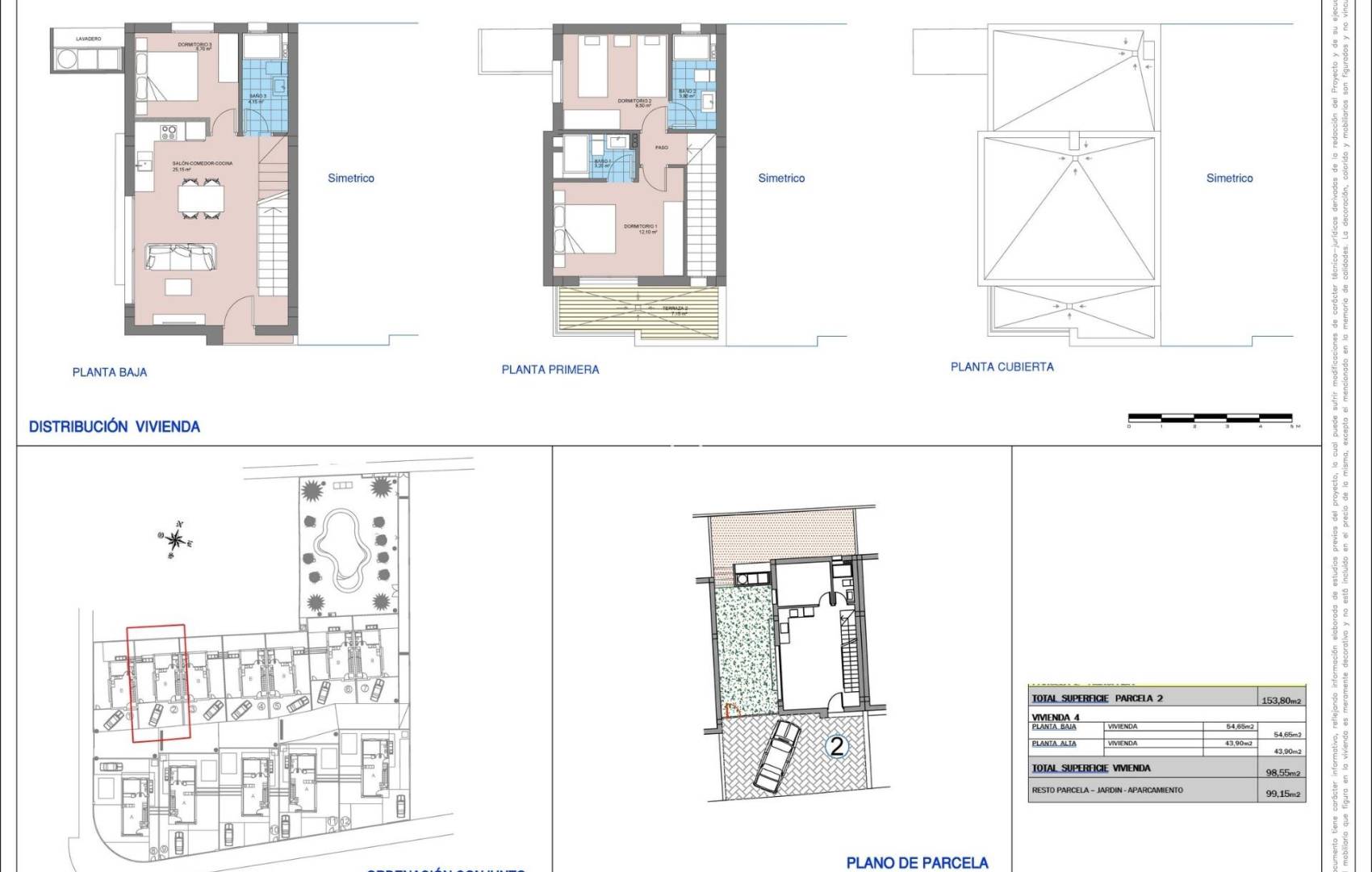
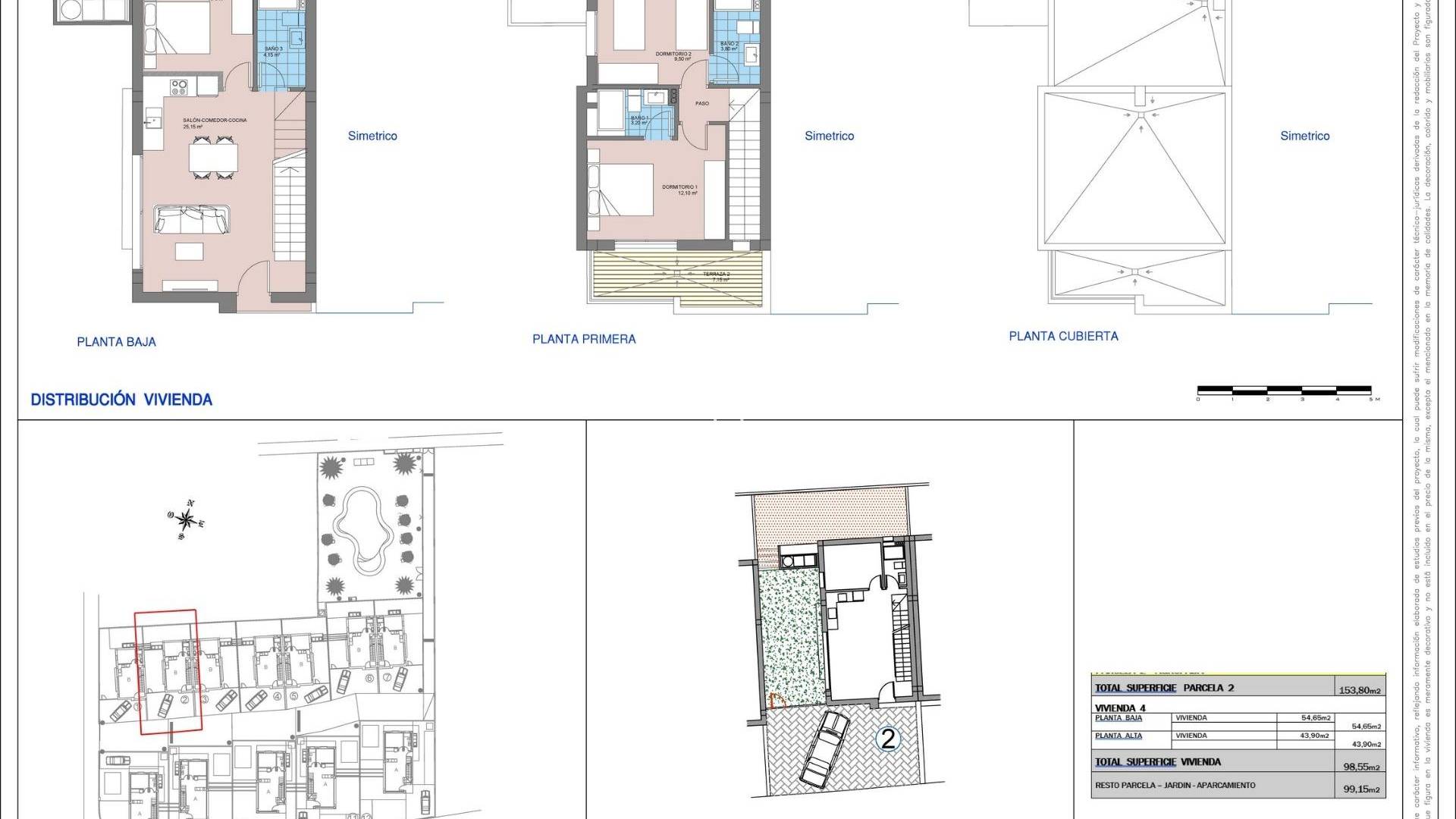
New Semi-Detached Villas by the Sea in La Marina - El Pinet Beach Exclusive Mediterranean Living Near the Beach This new residential development of semi-detached villas in La Marina, just 500 meters from El Pinet Beach, offers an unbeatable combination of modern design and a privileged natural environment. Located next to the Las Salinas Natural Park, residents can enjoy golden sandy beaches, crystal-clear waters, protected dunes, and a centuries-old pine forest – the perfect place to live all year round or enjoy as a holiday retreat. Modern Mediterranean Villas Designed for Comfort The villas are distributed over two floors, featuring: 3 spacious bedrooms and 3 bathrooms Ground floor with open-plan kitchen and living room, one bedroom, one bathroom, and access to the private garden with parking space First floor with two bedrooms, both ensuite, and a large terrace connected to the master bedroom Each home has been designed with bright, comfortable interiors and high-quality finishes, creating a unique and welcoming atmosphere. Fully Equipped with Premium Features These villas are delivered with: Fully fitted kitchen with induction hob, extractor hood, oven, fridge and pre-installation for dishwasher Modern cabinetry with premium finishes Fully installed ducted air conditioning Electric shutters Community pool surrounded by landscaped gardens A Prime Location on the Costa Blanca Living in La Marina means enjoying all the conveniences of a well-serviced town while being surrounded by nature and the Mediterranean Sea. Within walking distance you will find shops, restaurants, and essential services. Distances to key points of interest: El Pinet Beach: 500 m Elche city: 17 km Alicante-Elche International Airport: 22 km Golf courses (La Marquesa, El Plantío): 15–20 km Alicante city and port: 30 km The Perfect Coastal Lifestyle Whether you are looking for a permanent residence, a second home, or a smart investment, these villas in El Pinet offer a lifestyle marked by sea, nature, and modern comfort. With year-round sunshine and a privileged location, La Marina is one of the most desirable places on the Costa Blanca. Contact us today to arrange a visit and secure your dream villa by the Mediterranean.
This info given here is subject to errors and do not form part of any contract. The offer can be changed or withdrawn without notice. Prices do not include purchase costs.