Murcia · Fuente Álamo · Las Palas Villa · New Build

Ref.: NB-57027
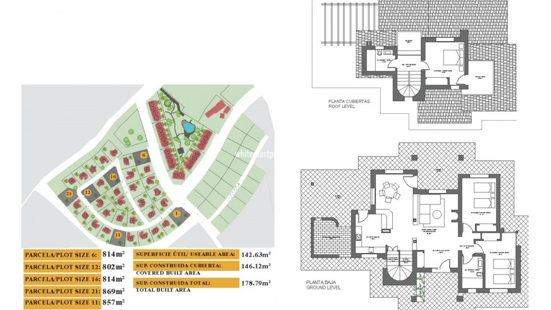
  • 178m2
  • 850m2
  • 3
  • 2

Features

  • 178m2
    Mts.
  • 178m2
    Plot
  • 3
    Bedrooms
  • 2
    Bathrooms

Details

Location: Coastal, Rural, Urbanisation
Key Ready
Terrace: 60 Msq.
Useable Build Space: 148 Msq.
Beach: 7500 Meters
Garden
Gated
Solarium: Yes
Number of Parking Spaces: 1
Air Conditioning: Pre-Installed
Near Golf / Golf Resort Property
Double Bedrooms: 3
Energy ranking
Energy ranking:
B

Description

KEY READY VILLA IN FUENTE ALAMO, MURCIA Residential of townhouses, independent and semi-detached villas in Fuente Álamo, Murcia. There are seven different models of houses to choose from, designed to suit everyone’s taste. Rustic designs combined with top quality materials and a focus on comfortable living space there is something for everyone. The residents of this private community of beautiful, spacious homes will also be able to enjoy their own communal gardens and swimming pools. This unusual design villa has 3 bedrooms and 2 bathroom, independent kitchen, living room with patio doors leading onto the covered porch. An options for a private pool at an extra cost. Fuente Álamo de Murcia is a town and municipality in the Region of Murcia, southern Spain. It is situated 22 km northwest of Cartagena and 35 km south west of Murcia. The town lies in the basin of the Mar Menor surrounded by the mountains of Algarrobo, Los Gómez, Los Victorias and the Carrascoy. The water from these mountains flows down into the Rambla de Fuente Álamo and then onto the Mar Menor. Fuente Álamo located 30 minutes from Murcia - Corvera airport.

Location

Economy

This info given here is subject to errors and do not form part of any contract. The offer can be changed or withdrawn without notice. Prices do not include purchase costs.

Calculate mortgages

Currency exchange

  • Pounds: 276.512 GBP
  • Russian ruble: 276.512 RUB
  • Swiss franc: 292.992 CHF
  • Chinese yuan: 2.559.648 CNY
  • USA Dollar: 376.352 USD
  • Swedish crown: 3.469.440 SEK
  • The Norwegian crown: 3.462.880 NOK

Ask for information

Responsable del tratamiento: , Finalidad del tratamiento: Gestión y control de los servicios ofrecidos a través de la página Web de Servicios inmobiliarios, Envío de información a traves de newsletter y otros, Legitimación: Por consentimiento, Destinatarios: No se cederan los datos, salvo para elaborar contabilidad, Derechos de las personas interesadas: Acceder, rectificar y suprimir los datos, solicitar la portabilidad de los mismos, oponerse altratamiento y solicitar la limitación de éste, Procedencia de los datos: El Propio interesado, Información Adicional: Puede consultarse la información adicional y detallada sobre protección de datos Aquí.

Similar Properties

© 2026 Arum Property Legal Privacy Cookies Web map

Design: Mediaelx