Murcia · San Javier · Parque del doce Casa de pueblo · Nueva construcción

Ref.: NB-67934
  • 95m2
  • 202m2
  • 3
  • 2
  •  

Características

  • 95m2
  • 95m2
    Parcela
  • 3
    Habitaciones
  • 2
    Baños
  •  

Detalles

Gated
Solarium: Yes
Number of Parking Spaces: 1
Near Schools
Air Conditioning: Pre-Installed
Beach: 2500 Meters
Near Golf / Golf Resort Property
Near Commercial Center
Location: Coastal, Urbanisation
Double Bedrooms: 3
Private Pool
Parking - Space
Useable Build Space: 74 Msq.
Terrace: 184 Msq.
Garden
Calificación energética
Calificación energética:
B

Descripción

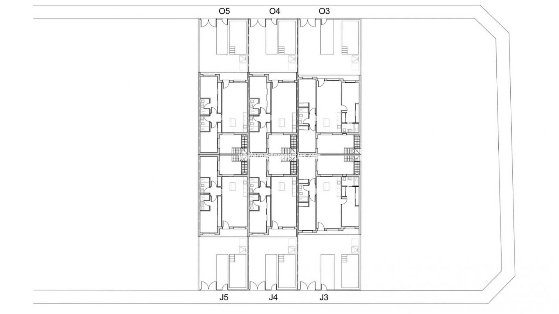
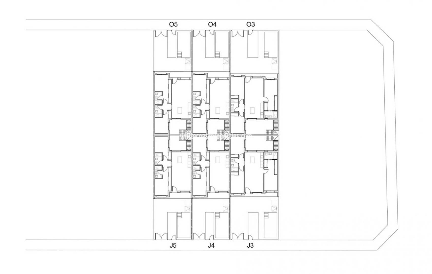
ADOSADOS DE OBRA NUEVA EN SAN JAVIER Complejo de lujo de nueva construcción de 24 villas de una o dos plantas con piscina privada, zona de terraza y solarium con cocina de verano que permite disfrutar de todas las horas de sol, todos los días del año. Cada villa dispone de 2 o 3 dormitorios y 2 baños equipados en una sola planta o 3 dormitorios y 3 baños equipados en dos niveles. Diseñadas con un estilo contemporáneo y un concepto abierto, compuesto por una cocina totalmente equipada y un salón-comedor. La promoción está situada en San Javier (Murcia), cerca de la playa, rodeada de servicios, parques, instalaciones deportivas y varios campos de golf. La vivienda cumplirá con los más altos estándares y estará equipada con: Piscina privada con ducha. Cocina completamente amueblada y equipada con horno, microondas, frigorífico, lavavajillas integrado, placa de cocción y campana extractora. Iluminación: tanto en el interior de la vivienda (comedor, cocina, pasillos y baños) como en las zonas exteriores. Armarios forrados con cajones. Cuartos de baño totalmente equipados con inodoro, mueble de baño, espejo y ducha con mamparas. Preinstalación de aire acondicionado por conductos. Solarium con cocina de verano. Plaza de aparcamiento en la parcela. San Javier está cerca de todos los servicios con fácil acceso a la playa, deportes acuáticos, tiendas y la red de transporte. Aquí puede disfrutar de todas las instalaciones que San Javier tiene para ofrecer como las tiendas locales, bares y restaurantes, así como estar cerca de los centros comerciales, el aeropuerto de Murcia y todos los hermosos lugares que se encuentran a lo largo del Mar Menor. El aeropuerto de Corvera/Murcia está a 30 minutos y el de Alicante a 45 minutos.

Localización

Economía

Esta información que se proporciona aquí está sujeta a errores y no forma parte de ningún contrato. La oferta se puede cambiar o retirar sin previo aviso. Los precios no incluyen los costes de compra

Calcular hipoteca

Cambio de divisas

  • Libras: 321.445 GBP
  • Rublo Ruso: 321.445 RUB
  • Franco Suizo: 340.603 CHF
  • Yuan Chino: 2.975.591 CNY
  • Dolar: 437.509 USD
  • Corona Sueca: 4.033.224 SEK
  • Corona Noruega: 4.025.598 NOK

Solicitar información

Responsable del tratamiento: , Finalidad del tratamiento: Gestión y control de los servicios ofrecidos a través de la página Web de Servicios inmobiliarios, Envío de información a traves de newsletter y otros, Legitimación: Por consentimiento, Destinatarios: No se cederan los datos, salvo para elaborar contabilidad, Derechos de las personas interesadas: Acceder, rectificar y suprimir los datos, solicitar la portabilidad de los mismos, oponerse altratamiento y solicitar la limitación de éste, Procedencia de los datos: El Propio interesado, Información Adicional: Puede consultarse la información adicional y detallada sobre protección de datos Aquí.

Propiedades similares

© 2026 Arum Property Nota legal Privacidad Cookies Mapa Web

Diseño: Mediaelx