
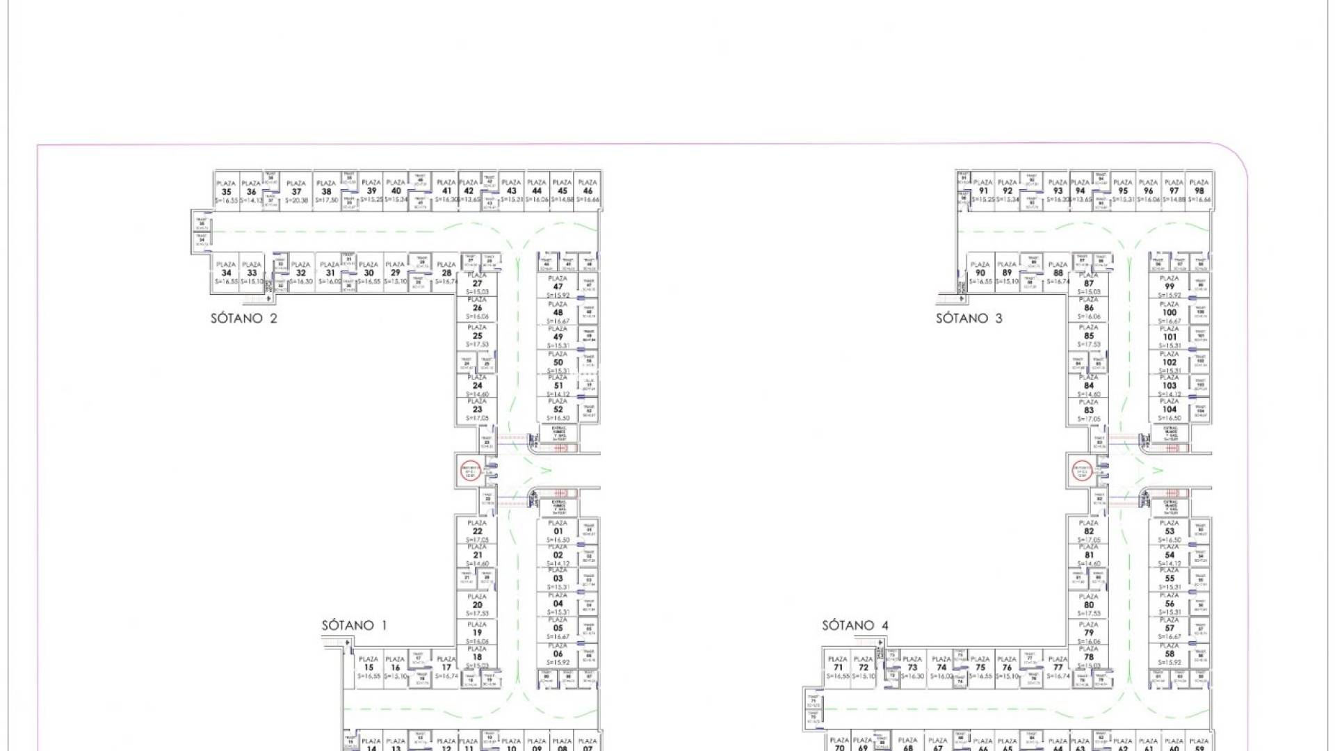
RESIDENCIAL DE OBRA NUEVA DE BUNGALOWS EN LOS BALCONES, TORREVIEJA Complejo residencial de nueva construcción con magníficas vistas a la salina rosa en Los Balcones. El complejo consta de 104 bungalows de 2 y 3 dormitorios, los bungalows de la última planta tienen solariums privados con vistas panorámicas a la laguna salada y los bungalows de la planta baja tienen grandes terrazas con vistas a la zona verde. Estos bungalows comparten hermosas zonas verdes y 2 grandes piscinas. Hay disponibles plazas de aparcamiento subterráneo y trasteros opcionales. Este residencial ofrece un diseño moderno, materiales seleccionados, apartamentos acabados con las más altas especificaciones utilizando sólo materiales de primera calidad. El Residencial se construirá en la ladera de una colina, de esta manera la vista y también el aire es claro y de calidad única. Los Balcones se encuentra a las afueras de Torrevieja con todos los servicios accesibles, a tan solo 5 minutos de la Playa de Los Náufragos, supermercados, el colegio y el Centro Comercial La Zenia Boulevard, y a un minuto del Hospital Universitario de Torrevieja. Además, encontrará 4 campos de golf a poca distancia en coche, incluyendo el galardonado Las Colinas Golf & Country Club. Complejo situado a 40 minutos del aeropuerto de Alicante y a 1 hora del aeropuerto de Murcia - Corvera.
Esta información que se proporciona aquí está sujeta a errores y no forma parte de ningún contrato. La oferta se puede cambiar o retirar sin previo aviso. Los precios no incluyen los costes de compra
© 2026 Arum Property ● Nota legal ● Privacidad ● Cookies ● Mapa Web
Diseño: Mediaelx
En primer lugar, gracias por contactarnos.
Hemos recibido su solicitud con respecto a la referencia de propiedad:NB-35095. Uno de nuestros agentes se pondrá en contacto con usted lo antes posible.
En primer lugar, gracias por contactarnos.
Hemos recibido una solicitud de informe si baja el precio de la propiedad con la referencia: NB-35095
Mientras tanto, eche un vistazo a esta selección de propiedades similares que podrían ser de su interés: