
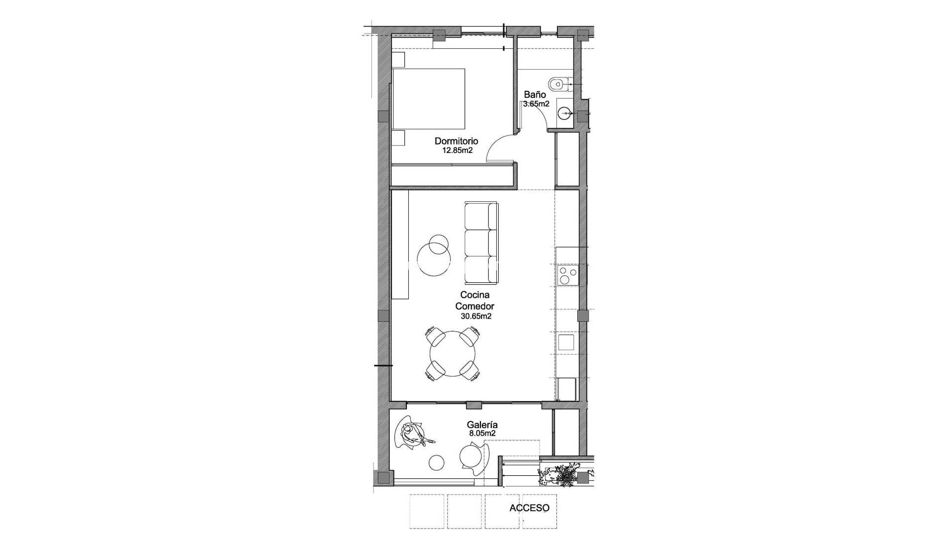
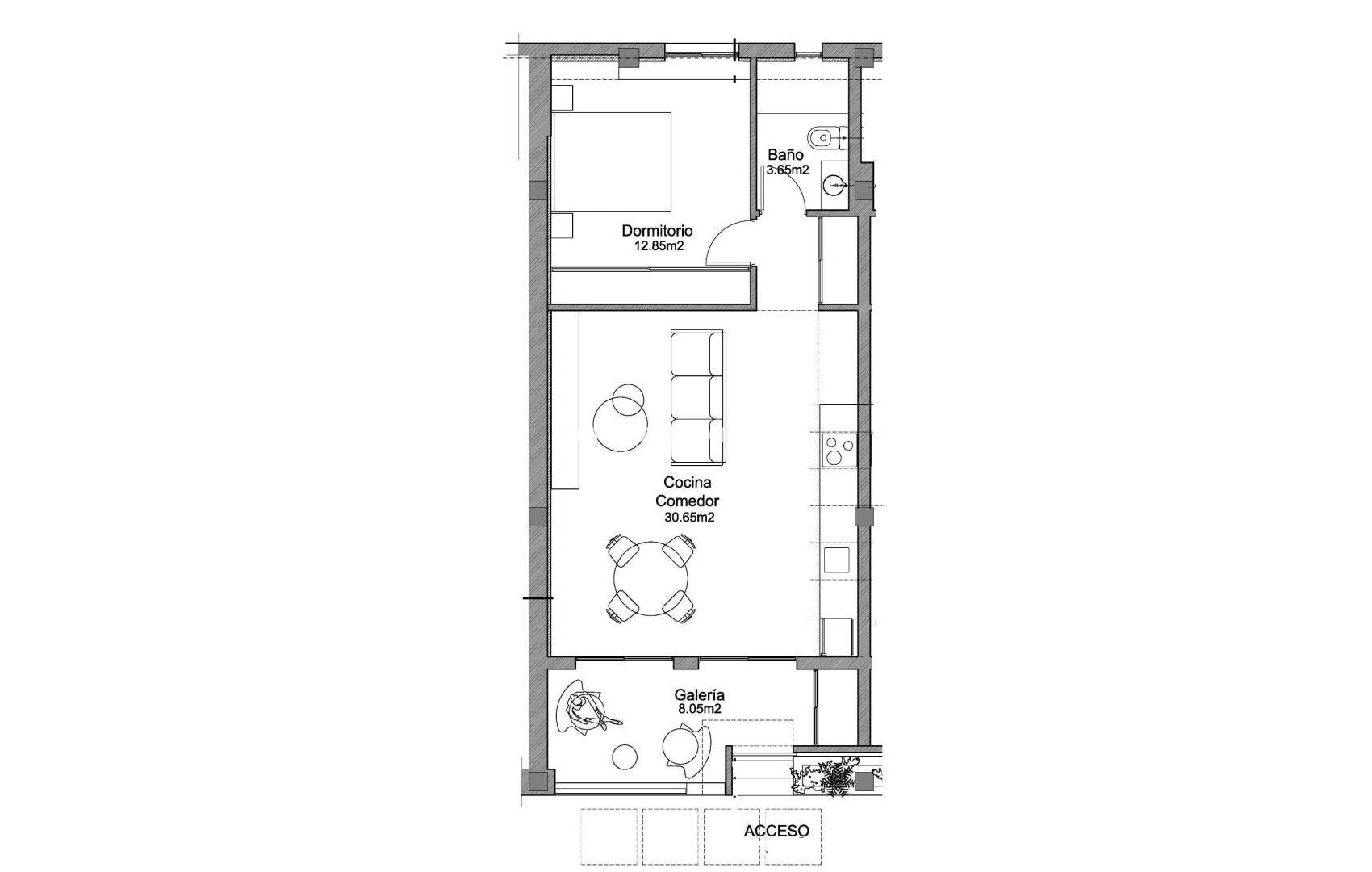
Modernos apartamentos de nueva construcción a solo 150 m del mar en Torrevieja Exclusiva promoción boutique junto a la playa Esta nueva promoción ofrece solo 3 modernos apartamentos en una ubicación privilegiada, a solo 150 metros de la playa de Los Náufragos en Torrevieja. Originalmente parte de un espacio comercial construido en 1989, la propiedad ha sido completamente renovada y transformada en elegantes viviendas de un dormitorio y un baño, diseñadas para la vida moderna en la costa. Diseño contemporáneo y comodidad lista para entrar a vivir Cada apartamento ha sido completamente reformado con acabados de primera calidad y se entrega totalmente amueblado y equipado. Las características incluyen: Cocina abierta con muebles y electrodomésticos incluidos Muebles de diseño, iluminación, cortinas, televisores y decoración Aire acondicionado frío/calor por splits tanto en el salón como en el dormitorio Cuarto de baño con muebles, espejo y mampara de ducha Terraza delantera con sitio para mesa y sillas Esta solución llave en mano le garantiza que podrá disfrutar de su nueva vivienda sin tener que preocuparse por amueblarla o equiparla. La entrega está prevista para febrero de 2026, una vez que se hayan finalizado las licencias y las conexiones de los servicios públicos, lo que la convierte en una oportunidad casi lista para entrar a vivir. Ubicación céntrica privilegiada en Torrevieja Situados a pocos pasos del mar y a 10 minutos del centro de la ciudad, estos apartamentos gozan de una ubicación inmejorable. En un radio de 300 metros encontrará restaurantes, supermercados, farmacias, bancos y opciones de transporte público. El puerto deportivo de Torrevieja está a solo 1 km, y servicios esenciales como el Hospital de Torrevieja y el centro comercial Las Habaneras están a poca distancia. Fácil acceso a destinos clave Playa de Los Náufragos: 150 m Puerto deportivo de Torrevieja: 1 km Campo de golf Villamartín: 10 km Aeropuerto de Alicante: 45 km Un estilo de vida junto al Mediterráneo Torrevieja es uno de los destinos más deseados de la Costa Blanca, conocido por sus playas de arena, su animado paseo marítimo y su excelente clima, con más de 300 días de sol al año. Tanto si busca una residencia permanente, una casa de vacaciones o una inversión, esta promoción boutique ofrece el equilibrio perfecto entre comodidad, estilo y ubicación. Asegúrese hoy mismo su apartamento en la costa Disfrute de una vida moderna a pocos pasos del mar. Póngase en contacto con nosotros ahora para concertar una visita y reservar su nueva vivienda en Torrevieja antes de que sea demasiado tarde.
Esta información que se proporciona aquí está sujeta a errores y no forma parte de ningún contrato. La oferta se puede cambiar o retirar sin previo aviso. Los precios no incluyen los costes de compra