
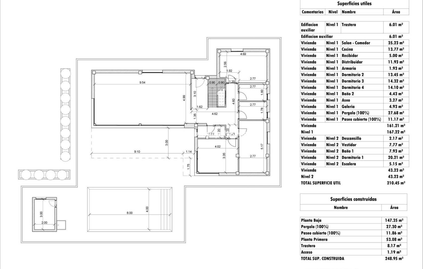
Villas de obra nueva situadas en término de Aspe. Villas de obra nueva con varios modelos a elegir entre 2, 3 o 4 dormitorios, de una o 2 plantas y construidas con losa o con estructura: dependiendo del modelo y la parcela elegida, se calculará el precio exacto. Todas las villas se construyen en parcelas rústicas de más de 10.000 m2 de los cuales se vallarán unos 2.500 m2. Las villas disponen de cocina americana con el salón, armarios empotrados, piscina privada, porche, trastero y plaza de parking exterior. Hay varias parcelas a elegir, para el cálculo del precio se ha considerado una parcela con un precio de 77.500 eur (si se elige otra parcela, se pagará o abonará la diferencia según el precio de la misma). Realizada en régimen de auto promoción, entrega en unos 12 meses desde la concesión de la licencia. Si busca un entorno tranquilo, cerca de pueblos típicos españoles alejados de la masificación turística, rodeado de montañas, con una amplísima parcela y a unos 30 minutos del mar, esta es su casa. Aspe es un típico pueblo español con todos los servicios para el día a día, rodeado de montañas y con varios parajes naturales en las cercanías donde se pueden hacer rutas de senderismo o mountain bike. Situado a 25 km de la playa, a 9 km de Elche y a unos 20 km del aeropuerto de Alicante.
Esta información que se proporciona aquí está sujeta a errores y no forma parte de ningún contrato. La oferta se puede cambiar o retirar sin previo aviso. Los precios no incluyen los costes de compra
© 2026 Arum Property ● Nota legal ● Privacidad ● Cookies ● Mapa Web
Diseño: Mediaelx
En primer lugar, gracias por contactarnos.
Hemos recibido su solicitud con respecto a la referencia de propiedad:NB-83743. Uno de nuestros agentes se pondrá en contacto con usted lo antes posible.
En primer lugar, gracias por contactarnos.
Hemos recibido una solicitud de informe si baja el precio de la propiedad con la referencia: NB-83743
Mientras tanto, eche un vistazo a esta selección de propiedades similares que podrían ser de su interés: